Ministère
de la Culture
POP | Plateforme ouverte du patrimoineéglise paroissiale Saint-Jean-Baptiste
église paroissiale Saint-Jean-Baptiste






Référence de la notice
IA04001392
Nom de la base
Patrimoine architectural (Mérimée)
Producteur
Inventaire
Date de création de la notice
26 mars 2010
Date de dernière modification de la notice
2 juin 2022
Rédacteur de la notice
Papin-Drastik Ivonne ; Buffa Géraud ; Masson-Lautier Maïna
Mentions légales
(c) Région Provence-Alpes-Côte d'Azur - Inventaire général
Désignation de l'édifice
Titre courant
église paroissiale Saint-Jean-Baptiste
Producteur
Inventaire
Dénomination de l'édifice
église paroissiale
Vocable, pour les édifices cultuels
Saint-Jean-Baptiste
Localisation au moment de la protection ou de l'étude
Localisation
Provence-Alpes-Côte d'Azur ; 04 ; Annot ; place de l'Eglise
Aire d'étude pour le domaine de l'Inventaire
Pays Asses, Verdon, Vaïre, Var
Canton
Annot
Adresse de l'édifice
de l'Eglise (place)
Références cadastrales
1830 F 393 ; 2009 F 384, 386, 388
Milieu d'implantation pour le domaine de l'Inventaire
en village
Historique de l'édifice
Siècle de campagne principale de construction
Siècle de campagne secondaire de construction
19e siècle
Description historique
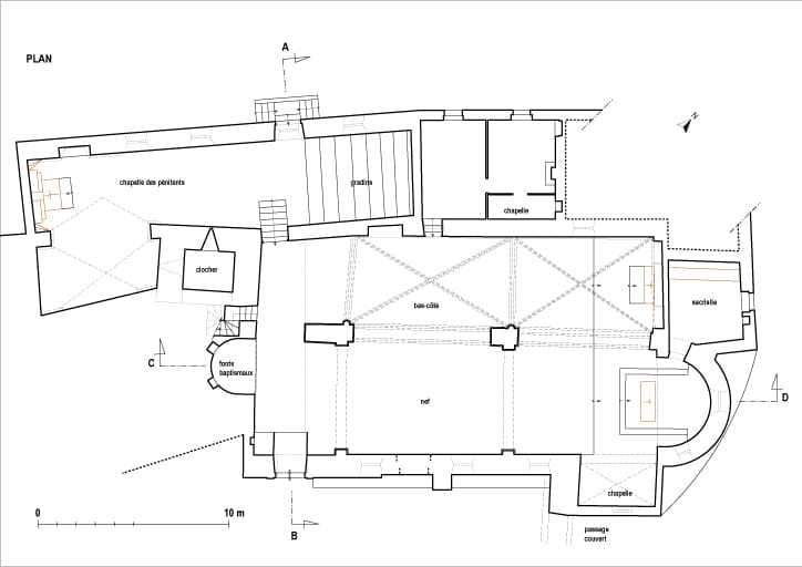
L'église d'origine, probablement du 12e siècle ou du 13e siècle, était à nef unique. Elle a été dédoublée grâce au percement du rempart par la construction d'un vaste bas-côté au début du 17e siècle. D'autres extensions (chapelles, sacristies) sont encore réalisées aux 17e, 18e et 19e siècles.
Description de l'édifice
Matériaux du gros-œuvre
grès ; moellon ; calcaire ; moellon ; tuf ; moellon
Matériaux de la couverture
tôle nervurée ; tuile creuse
Typologie de plan
plan allongé
Typologie du couvrement
voûte d'arêtes ; voûte en berceau brisé ; voûte d'ogives ; cul-de-four ; voûte en berceau en anse-de-panier
Typologie de la couverture
toit à longs pans
Emplacement, forme et structure de l'escalier
escalier dans-oeuvre : escalier tournant
Technique du décor porté de l'édifice
sculpture ; peinture
Indexation iconographique
animal ; ornement géométrique ; ornement végétal ; médaillon ; croix
Description de l'iconographie
Des ornements géométriques et végétaux stylisés sont peints sur l'intrados. Des traces de croix peintes dans un médaillon sont encore visibles sur les murs à l'entrée de l'abside. Un animal (agneau) est sculpté sur le claveau central de la porte d'entrée.
État de conservation
remanié ; restauré
Date de l'enquête ou du récolement
2009
Statut juridique
Statut juridique du propriétaire
propriété de la commune
Références documentaires
Cadre de l'étude
Typologie du dossier
dossier individuel
Date de rédaction de la notice
2009
Mentions légales
(c) Région Provence-Alpes-Côte d'Azur - Inventaire général
Sources complémentaires
Adresse de conservation et consultation du dossier
Région Provence-Alpes-Côte d'Azur - Direction Culture et Patrimoine - Service de l'Inventaire général du patrimoine culturel£Grand Horizon, 11-13 boulevard de Dunkerque, 13002 Marseille - 04 88 10 76 66
Voir aussi
URL vers le dossier complet de l'Inventaire

Référence de la notice
IA04001392
Nom de la base
Patrimoine architectural (Mérimée)
Producteur
Inventaire
Date de création de la notice
26 mars 2010
Date de dernière modification de la notice
2 juin 2022
Rédacteur de la notice
Papin-Drastik Ivonne ; Buffa Géraud ; Masson-Lautier Maïna
Mentions légales
(c) Région Provence-Alpes-Côte d'Azur - Inventaire général
Contactez-nousEnvoyer un courriel