Ministère
de la Culture
POP | Plateforme ouverte du patrimoineEglise Saint-Blaise
Eglise Saint-Blaise






Référence de la notice
PA00096751
Nom de la base
Patrimoine architectural (Mérimée)
Producteur
Monuments historiques
Date de création de la notice
14 septembre 1993
Date de dernière modification de la notice
28 novembre 2025
Mentions légales
© Monuments historiques, 1992. Cette notice reprend intégralement les termes de l’arrêté de protection au titre des Monuments historiques. Elle répond à l’obligation réglementaire du ministère de la Culture d’établir la liste générale des immeubles protégés (art. R. 621-80 du Code du patrimoine). Elle est donc opposable et fait foi juridiquement. Aucune copie numérique ou papier ne sera fournie par courrier ni courriel. Le dossier de protection complet et l’arrêté sont consultables uniquement sur place, dans la salle de lecture de la Médiathèque du patrimoine et de la photographie (MPP), à Charenton-le-Pont (Val-de-Marne).
Désignation de l'édifice
Titre courant
Eglise Saint-Blaise
Producteur
Monuments historiques
Dénomination de l'édifice
église
Qualité des personnes pour qui l'édifice a été construit ou transformé
de bénédictins
Destination actuelle de l'édifice
église paroissiale
Localisation au moment de la protection ou de l'étude
Localisation
Centre-Val de Loire ; Cher (18) ; La Celle
Précision sur la localisation
anciennement commune de Celle-Bruère (La). Anciennement région de : Centre
Références cadastrales
1984 B 716
Milieu d'implantation pour le domaine de l'Inventaire
en village
Historique de l'édifice
Siècle de campagne principale de construction
Siècle de campagne secondaire de construction
Antiquité ; Haut Moyen Age
Description historique
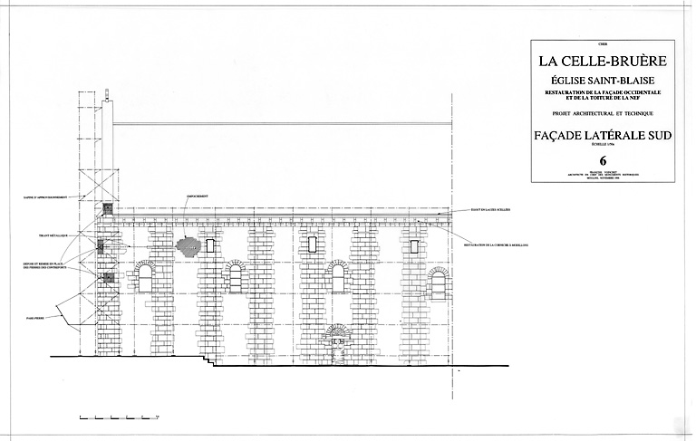
Cette église d'un prieuré dépendant de l'abbaye de Déols est attestée au début du 12e siècle. Elle a été endommagée lors du pillage du bourg en 1156 par Raoul de Charenton ; on trouve des vestiges sculptés du Haut Moyen Age en remploi dans le mur ouest. L'église a été reconstruite dans la seconde moitié du 12e siècle, en conservant une partie des murs latéraux de la nef primitive. Les arcs-boutants ont été ajoutés au 15e siècle côté sud, et en 1735 pour le côté nord. Le berceau de la nef a été refait en 1898. Le clocher a été restauré en 1911. Des stèles gallo-romaines ont été remployées dans les maçonneries.
Description de l'édifice
Technique du décor porté de l'édifice
sculpture ; peinture
Statut juridique, intérêt, protection et label
Nature de la protection de l'édifice
classé MH
Date et niveau de protection de l'édifice
1840 : classé MH
Précision sur la protection
Eglise (cad. B 716) : classement par liste de 1840
Nature de l'acte de protection
liste
Intérêt de l'édifice
à signaler
Observation concernant la protection de l'édifice
18 04 1914 (J.O.). Objets mobiliers protégés.
Statut juridique
Statut juridique du propriétaire
propriété de la commune
Références documentaires
Cadre de l'étude
Typologie du dossier
dossier de protection
Date de rédaction de la notice
1992
Mentions légales
© Monuments historiques, 1992. Cette notice reprend intégralement les termes de l’arrêté de protection au titre des Monuments historiques. Elle répond à l’obligation réglementaire du ministère de la Culture d’établir la liste générale des immeubles protégés (art. R. 621-80 du Code du patrimoine). Elle est donc opposable et fait foi juridiquement. Aucune copie numérique ou papier ne sera fournie par courrier ni courriel. Le dossier de protection complet et l’arrêté sont consultables uniquement sur place, dans la salle de lecture de la Médiathèque du patrimoine et de la photographie (MPP), à Charenton-le-Pont (Val-de-Marne).
Voir aussi
Référence pour lien avec la base Archiv'MH

Référence de la notice
PA00096751
Nom de la base
Patrimoine architectural (Mérimée)
Producteur
Monuments historiques
Date de création de la notice
14 septembre 1993
Date de dernière modification de la notice
28 novembre 2025
Mentions légales
© Monuments historiques, 1992. Cette notice reprend intégralement les termes de l’arrêté de protection au titre des Monuments historiques. Elle répond à l’obligation réglementaire du ministère de la Culture d’établir la liste générale des immeubles protégés (art. R. 621-80 du Code du patrimoine). Elle est donc opposable et fait foi juridiquement. Aucune copie numérique ou papier ne sera fournie par courrier ni courriel. Le dossier de protection complet et l’arrêté sont consultables uniquement sur place, dans la salle de lecture de la Médiathèque du patrimoine et de la photographie (MPP), à Charenton-le-Pont (Val-de-Marne).
Signalez une erreurEnvoyer un courriel