Ministère
de la Culture
POP | Plateforme ouverte du patrimoineVestiges gallo-romains
Vestiges gallo-romains






Référence de la notice
PA00096786
Nom de la base
Patrimoine architectural (Mérimée)
Producteur
Monuments historiques
Date de création de la notice
14 septembre 1993
Date de dernière modification de la notice
12 janvier 2026
Mentions légales
© Monuments historiques, 1992. Cette notice reprend intégralement les termes de l’arrêté de protection au titre des Monuments historiques. Elle répond à l’obligation réglementaire du ministère de la Culture d’établir la liste générale des immeubles protégés (art. R. 621-80 du Code du patrimoine). Elle est donc opposable et fait foi juridiquement. Aucune copie numérique ou papier ne sera fournie par courrier ni courriel. Le dossier de protection complet et l’arrêté sont consultables uniquement sur place, dans la salle de lecture de la Médiathèque du patrimoine et de la photographie (MPP), à Charenton-le-Pont (Val-de-Marne).
Désignation de l'édifice
Titre courant
Vestiges gallo-romains
Producteur
Monuments historiques
Dénomination de l'édifice
site archéologique
Localisation au moment de la protection ou de l'étude
Localisation
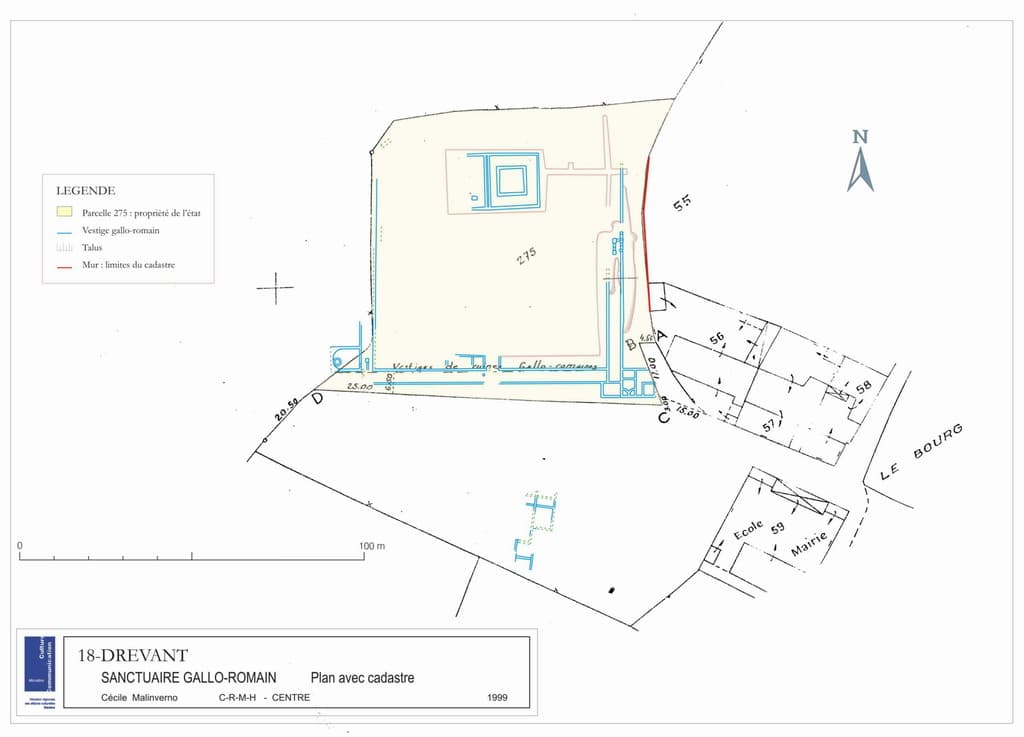
Centre-Val de Loire ; Cher (18) ; Drevant ; le Bourg
Précision sur la localisation
Anciennement région de : Centre
Lieu-dit
le Bourg
Références cadastrales
1984 AN 55, 56, 59, 62, 67, 82, 274, 275, 335 ; 1984 ZI 33 à 35 ; non cadastré ; domaine public communal
Historique de l'édifice
Siècle de campagne principale de construction
Description historique
Le sanctuaire a été fouillé en 1834 par Hazé, conservateur des monuments historiques. Dès 1834, il y notait les restes d'un temple [...], de deux établissements de bains et d'un vaste théâtre.