Ministère
de la Culture
POP | Plateforme ouverte du patrimoineMaison
Maison






Référence de la notice
PA88000014
Nom de la base
Patrimoine architectural (Mérimée)
Producteur
Monuments historiques
Date de création de la notice
26 août 2002
Date de dernière modification de la notice
4 mars 2026
Mentions légales
(c) Monuments historiques. Cette notice reprend intégralement les termes de l’arrêté de protection au titre des Monuments historiques. Elle répond à l’obligation réglementaire du ministère de la Culture d’établir la liste générale des immeubles protégés (art. R. 621-80 du Code du patrimoine). Elle est donc opposable et fait foi juridiquement. Aucune copie numérique ou papier ne sera fournie par courrier ni courriel. Le dossier de protection complet et l’arrêté sont consultables uniquement sur place, dans la salle de lecture de la Médiathèque du patrimoine et de la photographie (MPP), à Charenton-le-Pont (Val-de-Marne).
Désignation de l'édifice
Titre courant
Maison
Producteur
Monuments historiques
Dénomination de l'édifice
maison
Localisation au moment de la protection ou de l'étude
Localisation
Grand Est ; Vosges (88) ; Neufchâteau ; 17 rue Neuve
Précision sur la localisation
Anciennement région de : Lorraine
Adresse de l'édifice
Neuve (rue) 17
Références cadastrales
AB 235
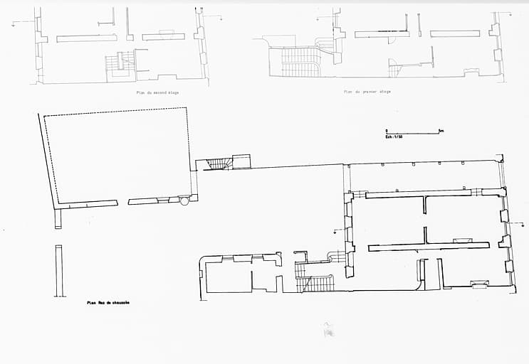
Historique de l'édifice
Siècle de campagne principale de construction
Description historique
Maison reconstruite vers 1780 sur des caves du 16e siècle, seul élément subsistant du bâtiment préexistant. Le bâtiment comporte deux corps : le logis sur une cave à deux vaisseaux voûtés en berceau séparés par des arcs ; un corps en équerre renfermant l'escalier rampe. Il est prolongé par un appentis daté de 1822. En façade, les chambranles moulurés s'ornent d'agrafes décorées de coquilles, d'enroulements végétaux et de guirlandes de fleurs caractéristiques du règne de Louis XVI. Le décor intérieur, bien conservé, est particulièrement abondant (parquets à panneaux géométriques, plafonds moulurés à roses centrales en stuc, lambris, cheminées, alcôve...)