Ministère
de la Culture
POP | Plateforme ouverte du patrimoineLogis seigneurial
Logis seigneurial


Référence de la notice
IVR24_20142800135NUDA
Nom de la base
Photographies (Mémoire)
Producteur
Inventaire
Date de création de la notice
3 juin 2021
Date de dernière modification de la notice
3 juin 2021
Photographe
Guérid, Myriam ; Rozier, Hadrien
Mentions légales
(c) Région Centre-Val de Loire, Inventaire général
Droits de reproduction et de réutilisation
communication libre, reproduction soumise à autorisation
Sujet de la photographie
Description
Producteur
Inventaire
Légende
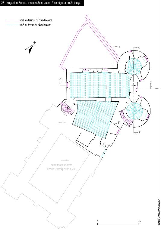
Plan de distribution, deuxième étage (2014).
Titre courant de l'œuvre
Logis seigneurial
Sujet représenté par la photographie ou le document graphique
plan
Dénomination de l'œuvre
logis
Localisation
Localisation
France ; Centre-Val de Loire ; Eure-et-Loir ; Nogent-le-Rotrou ; du Château (rue)
Code INSEE de la commune
28280
Auteur
Photographe
Dessinateur
Guérid, Myriam ; Rozier, Hadrien
Datation et événements liés à l’image
Date de prise de vue
2014
Description de la photographie ou du document graphique
Éléments d’identification
Catégorie du phototype
dessin numérique
Numéro du phototype
20142800135NUDA
Description technique du phototype ou du document graphique
Format du négatif
NUD

Référence de la notice
IVR24_20142800135NUDA
Nom de la base
Photographies (Mémoire)
Producteur
Inventaire
Date de création de la notice
3 juin 2021
Date de dernière modification de la notice
3 juin 2021
Photographe
Guérid, Myriam ; Rozier, Hadrien
Mentions légales
(c) Région Centre-Val de Loire, Inventaire général
Droits de reproduction et de réutilisation
communication libre, reproduction soumise à autorisation
Contactez-nousEnvoyer un courriel