Ministère
de la Culture
POP | Plateforme ouverte du patrimoineporte de Colmar
porte de Colmar


Référence de la notice
IVR42_19846801975P
Nom de la base
Photographies (Mémoire)
Producteur
Inventaire
Date de création de la notice
28 février 2005
Date de dernière modification de la notice
27 août 2020
Photographe
Erfurth, Jean
Mentions légales
© Inventaire général, ADAGP
Droits de reproduction et de réutilisation
reproduction soumise à autorisation du titulaire des droits d'exploitation
Sujet de la photographie
Description
Édifice
porte de Colmar
Producteur
Inventaire
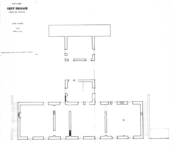
Légende
Plan au sol.
Titre courant de l'œuvre
porte de Colmar
Sujet représenté par la photographie ou le document graphique
porte
Domaine
architecture
Localisation
Localisation
France ; Alsace ; Haut-Rhin ; Neuf-Brisach ; Porte-de-Colmar (place de la) 5
Code INSEE de la commune
68231
Aire d'étude
Neuf-Brisach
Auteur
Photographe
Datation et événements liés à l’image
Date de prise de vue
1984