Ministère
de la Culture
POP | Plateforme ouverte du patrimoineHôtel Jouin de la Tremblaye, puis du Gouvernement ; évêché ; actuellement musées Lafaille et Fleuriau
Hôtel Jouin de la Tremblaye, puis du Gouvernement ; évêché ; actuellement musées Lafaille et Fleuriau


Référence de la notice
IVR54_20001707065
Nom de la base
Photographies (Mémoire)
Producteur
Inventaire
Date de création de la notice
26 mai 2008
Date de dernière modification de la notice
28 novembre 2022
Photographe
Rome, C.
Mentions légales
(c) Région Nouvelle-Aquitaine, Inventaire général du patrimoine culturel
Droits de reproduction et de réutilisation
reproduction soumise à autorisation du titulaire des droits d'exploitation
Sujet de la photographie
Description
Édifice
Hôtel Jouin de la Tremblaye, puis du Gouvernement ; évêché ; actuellement musées Lafaille et Fleuriau
Producteur
Inventaire
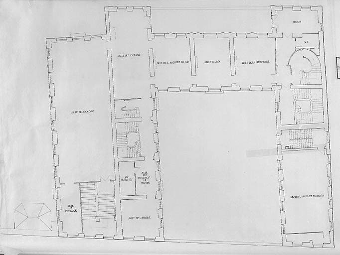
Légende
Plan du premier étage étage, le 20 septembre 1874.
Titre courant de l'œuvre
Hôtel Jouin de la Tremblaye, puis du Gouvernement ; évêché ; actuellement musées Lafaille et Fleuriau
Sujet représenté par la photographie ou le document graphique
hôtel ; palais épiscopal ; musée
Domaine
architecture
Mots-clés
évêché
Localisation
Localisation
France ; Nouvelle-Aquitaine ; Charente-Maritime ; La Rochelle ; Albert 1er (rue)
Code INSEE de la commune
17300
Aire d'étude
Rochelle centre (La)
Auteur
Photographe