Ministère
de la Culture
POP | Plateforme ouverte du patrimoinecâblerie dite Compagnie Générale des Câbles de Lyon puis Les câbles de Lyon, manufacture de fils et câbles électriques de la CGE puis Alcatel-Câbles actuellement Nexans
câblerie dite Compagnie Générale des Câbles de Lyon puis Les câbles de Lyon, manufacture de fils et câbles électriques de la CGE puis Alcatel-Câbles actuellement Nexans


Référence de la notice
IVR82_20066900157NUD
Nom de la base
Photographies (Mémoire)
Producteur
Inventaire
Date de création de la notice
19 septembre 2008
Date de dernière modification de la notice
23 juin 2020
Photographe
Cherblanc, P.
Mentions légales
© Inventaire général du patrimoine culturel, Région Rhône-Alpes ; © Inventaire de Lyon propriété de l'Etat et de la Ville de Lyon
Droits de reproduction et de réutilisation
reproduction soumise à autorisation du titulaire des droits d'exploitation
Sujet de la photographie
Description
Édifice
câblerie dite Compagnie Générale des Câbles de Lyon puis Les câbles de Lyon, manufacture de fils et câbles électriques de la CGE puis Alcatel-Câbles actuellement Nexans
Producteur
Inventaire
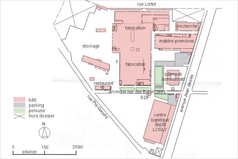
Légende
Plan alcatel Câbles Etablissement de Lyon
Titre courant de l'œuvre
câblerie dite Compagnie Générale des Câbles de Lyon puis Les câbles de Lyon, manufacture de fils et câbles électriques de la CGE puis Alcatel-Câbles actuellement Nexans
Sujet représenté par la photographie ou le document graphique
câblerie
Auteur de l'œuvre représentée
Burel (architecte)
Domaine
architecture
Localisation
Localisation
France ; Rhône-Alpes ; Rhône ; Lyon 7e arrondissement ; Jean-Jaurès (avenue) 170 ; Gerland
Code INSEE de la commune
69123
Aire d'étude
Lyon
Auteur
Photographe