Ministère
de la Culture
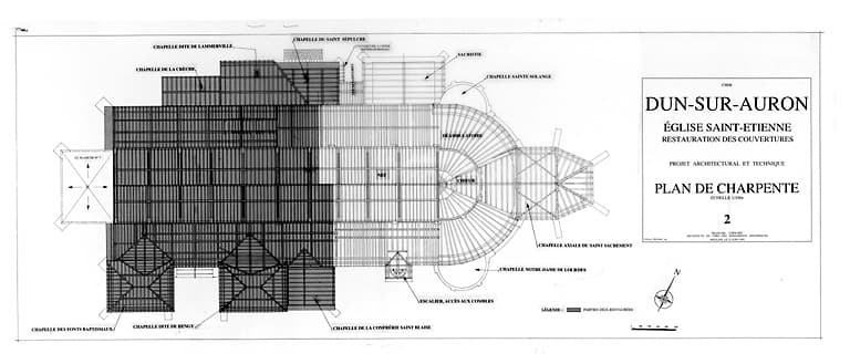
POP | Plateforme ouverte du patrimoineEglise Saint-Etienne : 2 - Plan de charpente, restauration des couvertures.
Eglise Saint-Etienne : 2 - Plan de charpente, restauration des couvertures.


Référence de la notice
MHR24_02185426
Nom de la base
Photographies (Mémoire)
Producteur
Conservations régionales des monuments historiques (CRMH)
Date de création de la notice
18 juillet 2008
Date de dernière modification de la notice
21 avril 2021
Photographe
Voinchet, François
Mentions légales
© Ministère de la Culture (France), Direction Régionale des Affaires Culturelles du Centre-Val de Loire, tous droits réservés
Droits de reproduction et de réutilisation
reproduction soumise à autorisation du titulaire des droits d'exploitation
Sujet de la photographie
Description
Édifice
Eglise Saint-Etienne
Producteur
Conservations régionales des monuments historiques (CRMH)
Légende
Eglise Saint-Etienne : 2 - Plan de charpente, restauration des couvertures.
Sujet représenté par la photographie ou le document graphique
église
Lieu d'origine d'un objet déplacé
Conservation régionale des monuments historiques
Domaine
architecture
Localisation
Localisation
France ; Centre-Val de Loire ; Cher ; Dun-sur-Auron
Code INSEE de la commune
18087
Auteur
Photographe
Datation et événements liés à l’image
Date de prise de vue
1995