Ministère
de la Culture
POP | Plateforme ouverte du patrimoinechartreuse du Val-de-Bénédiction (ancienne)
chartreuse du Val-de-Bénédiction (ancienne)


Référence de la notice
MHR91_20103019121
Nom de la base
Photographies (Mémoire)
Producteur
Conservations régionales des monuments historiques (CRMH)
Date de création de la notice
28 août 2017
Photographe
Grange-Chavanis, Jean-François
Mentions légales
© Monuments historiques
Droits de reproduction et de réutilisation
reproduction soumise à autorisation du titulaire des droits d'exploitation
Sujet de la photographie
Description
Édifice
chartreuse du Val-de-Bénédiction (ancienne)
Producteur
Conservations régionales des monuments historiques (CRMH)
Légende
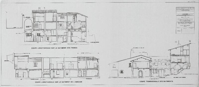
Bâtiment des frères, PAT, état des lieux, coupes. EL6.
Titre courant de l'œuvre
chartreuse du Val-de-Bénédiction (ancienne)
Sujet représenté par la photographie ou le document graphique
abbaye
Domaine
architecture
Localisation
Localisation
France ; Languedoc-Roussillon ; Gard ; Villeneuve-lès-Avignon
Code INSEE de la commune
30351
Auteur
Photographe
Datation et événements liés à l’image
Date de prise de vue