Ministère
de la Culture
POP | Plateforme ouverte du patrimoinePresbytère
Presbytère





Référence de la notice
IA00024163
Nom de la base
Patrimoine architectural (Mérimée)
Producteur
Inventaire
Date de création de la notice
1987 AVANT
Date de dernière modification de la notice
21 septembre 2020
Mentions légales
© Inventaire général
Désignation de l'édifice
Titre courant
Presbytère
Producteur
Inventaire
Dénomination de l'édifice
presbytère
Localisation au moment de la protection ou de l'étude
Localisation
Grand Est ; Haut-Rhin (68) ; Willer-sur-Thur ; place de l'Eglise
Précision sur la localisation
Anciennement région de : Alsace
Aire d'étude pour le domaine de l'Inventaire
Thann
Adresse de l'édifice
Eglise (place de l')
Références cadastrales
1895 7 45
Milieu d'implantation pour le domaine de l'Inventaire
en village
Historique de l'édifice
Siècle de campagne principale de construction
Auteur de l'édifice
Description de l'édifice
Matériaux du gros-œuvre
grès ; moellon sans chaîne en pierre de taille ; revêtement
Matériaux de la couverture
tuile mécanique
Description de l'élévation intérieure
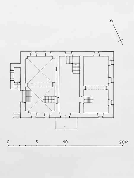
sous-sol ; 2 étages carrés
Partie d'élévation extérieure
élévation à travées
Typologie de la couverture
toit à longs pans ; croupe
Emplacement, forme et structure de l'escalier
escalier dans-oeuvre : escalier tournant à retours avec jour
Date de l'enquête ou du récolement
1968
Statut juridique, intérêt, protection et label
Observation concernant la protection de l'édifice
Saisie en reprise de l'antériorité. Mise à jour formelle et rechargement en 2009.
Statut juridique
Statut juridique du propriétaire
propriété de la commune
Références documentaires
Cadre de l'étude
Typologie du dossier
dossier individuel
Date de rédaction de la notice
1987
Mentions légales
© Inventaire général
Sources complémentaires
Adresse de conservation et consultation du dossier
Région Alsace - Service de l'Inventaire du Patrimoine culturel£Palais du Rhin - 2 Place de la République 67000 Strasbourg - 03.88.15.38.31
Voir aussi
Lien vers le dossier PDF

Référence de la notice
IA00024163
Nom de la base
Patrimoine architectural (Mérimée)
Producteur
Inventaire
Date de création de la notice
1987 AVANT
Date de dernière modification de la notice
21 septembre 2020
Mentions légales
© Inventaire général
Contactez-nousEnvoyer un courriel