POP

Plateforme ouverte du patrimoine

Ecole

Désignation

Dénomination de l'édifice

École

Titre courant

Ecole

Localisation

Localisation

Grand Est ; Haut-Rhin (68) ; Bourbach-le-Bas ; rue de l'Eglise

Précision sur la localisation

Anciennement région de : Alsace

Aire d'étude pour le domaine Inventaire

Thann

Adresse de l'édifice

Eglise (rue de l')

Références cadastrales

1893 1 110

Milieu d'implantation pour le domaine Inventaire

En village

Historique

Siècle de la campagne principale de construction

2e quart 19e siècle

Année(s) de(s) campagne(s) de construction

1832

Commentaires concernant la datation

Porte la date

Auteur de l'édifice

Description historique

La reconstruction de l'école décidée en 1829 d'après un projet de Kuen n'est pas exécutée ; des travaux d'agrandissement sont entrepris en 1832 (date portée par l'édifice actuel) et poursuivis en 1834, dirigés par Kuen (documents aux archives du Haut-Rhin).

Description

Matériaux du gros-œuvre

Grès ; moellon sans chaîne en pierre de taille

Matériaux de la couverture

Tuile plate

Description de l'élévation intérieure

1 étage carré

Partie d'élévation extérieure

Élévation à travées

Typologie de couverture

Toit à longs pans ; croupe

Emplacement, forme et structure de l’escalier

Escalier dans-oeuvre : escalier en équerre

Protection et label

Observations concernant la protection de l'édifice

Saisie en reprise de l'antériorité. Mise à jour formelle et rechargement en 2009.

Statut juridique

Statut juridique du propriétaire

Propriété de la commune

Références documentaires

Date de l'enquête ou du dernier récolement

1968

Date de rédaction de la notice

1987

Cadre de l'étude

Typologie du dossier

Dossier individuel

Adresse du dossier Inventaire

Région Alsace - Service de l'Inventaire du Patrimoine culturel Palais du Rhin - 2 Place de la République 67000 Strasbourg - 03.88.15.38.31

1/7
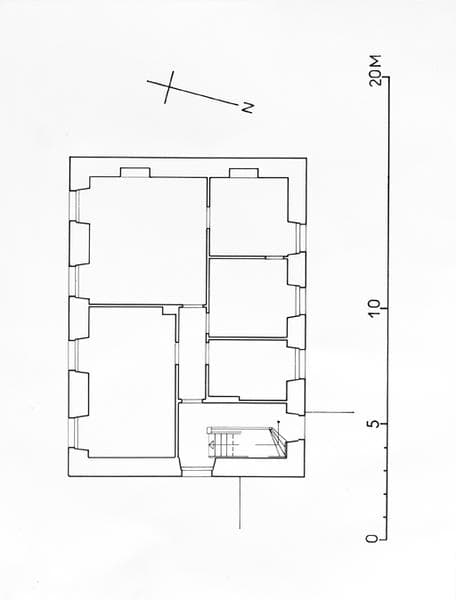
Plan au rez-de-chaussée.
Plan au rez-de-chaussée.
© Région Alsace - Inventaire général
Voir la notice image
Plan au premier étage.
Plan au premier étage.
© Région Alsace - Inventaire général
Voir la notice image
Coupe transversale.
Coupe transversale.
© Région Alsace - Inventaire général
Voir la notice image
Plans, coupes et élévation de la maison d'école.
Plans, coupes et élévation de la maison d'école.
© Région Alsace - Inventaire général
Voir la notice image
Plans, coupe et élévation de la maison d'école.
Plans, coupe et élévation de la maison d'école.
© Région Alsace - Inventaire général
Voir la notice image
Vue d'ensemble prise du sud-est.
Vue d'ensemble prise du sud-est.
© Région Alsace - Inventaire général
Voir la notice image
Vue de la façade principale sur rue.
Vue de la façade principale sur rue.
© Région Alsace - Inventaire général
Voir la notice image