Ministère
de la Culture
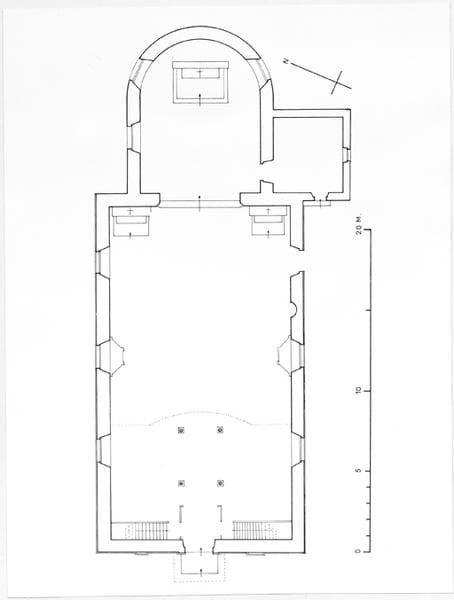
POP | Plateforme ouverte du patrimoineEglise paroissiale Saint-Apollinaire
Eglise paroissiale Saint-Apollinaire






Référence de la notice
IA00024178
Nom de la base
Patrimoine architectural (Mérimée)
Producteur
Inventaire
Date de création de la notice
1987 AVANT
Date de dernière modification de la notice
21 septembre 2020
Mentions légales
© Inventaire général
Désignation de l'édifice
Titre courant
Eglise paroissiale Saint-Apollinaire
Producteur
Inventaire
Dénomination de l'édifice
église paroissiale
Vocable, pour les édifices cultuels
Saint-Apollinaire
Localisation au moment de la protection ou de l'étude
Localisation
Grand Est ; Haut-Rhin (68) ; Bourbach-le-Bas ; rue de l'Eglise
Précision sur la localisation
Anciennement région de : Alsace
Aire d'étude pour le domaine de l'Inventaire
Thann
Adresse de l'édifice
Eglise (rue de l')
Références cadastrales
1893 1 99
Milieu d'implantation pour le domaine de l'Inventaire
en village
Partie constituante non étudiée
enclos ; calvaire monumental
Historique de l'édifice
Siècle de campagne principale de construction