Ministère
de la Culture
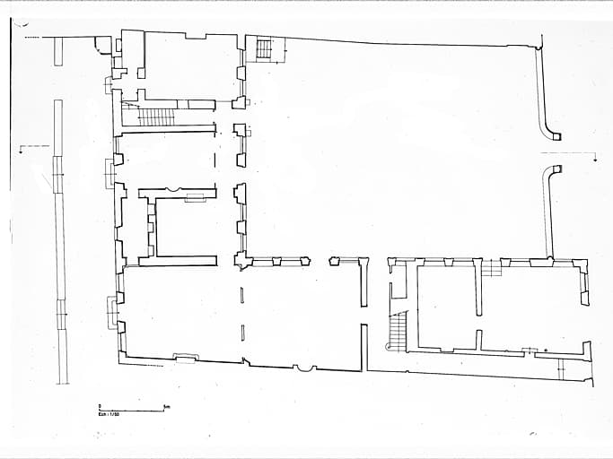
POP | Plateforme ouverte du patrimoineHôpital Saint-Jean-de-Jérusalem ou Hôtel de Malte
Hôpital Saint-Jean-de-Jérusalem ou Hôtel de Malte






Référence de la notice
IA00126864
Nom de la base
Patrimoine architectural (Mérimée)
Producteur
Inventaire
Date de création de la notice
24 octobre 1995
Date de dernière modification de la notice
21 septembre 2020
Rédacteur de la notice
Malinverno Bruno ; Guillaume Jacques
Mentions légales
© Région Lorraine - Inventaire général
Désignation de l'édifice
Titre courant
Hôpital Saint-Jean-de-Jérusalem ou Hôtel de Malte
Appellation d'usage
Hôpital Saint Jean de Jérusalem ou Hôtel de Malte
Producteur
Inventaire
Dénomination de l'édifice
hôpital
Destination actuelle de l'édifice
sous-préfecture
Localisation au moment de la protection ou de l'étude
Localisation
Grand Est ; Vosges (88) ; Neufchâteau ; 26 rue Saint Jean
Précision sur la localisation
Anciennement région de : Lorraine
Aire d'étude pour le domaine de l'Inventaire
Neufchâteau
Adresse de l'édifice
Saint Jean (rue) 26
Références cadastrales
1828 B 457 ; 1974 AB 312
Milieu d'implantation pour le domaine de l'Inventaire
en ville