Ministère
de la Culture
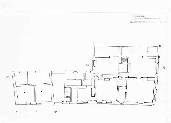
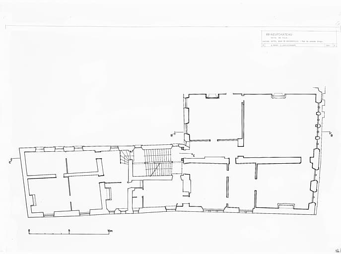
POP | Plateforme ouverte du patrimoineHôtel de Houdreville, aujourd'hui mairie
Hôtel de Houdreville, aujourd'hui mairie






Référence de la notice
IA00126936
Nom de la base
Patrimoine architectural (Mérimée)
Producteur
Inventaire
Date de création de la notice
24 octobre 1995
Date de dernière modification de la notice
21 septembre 2020
Rédacteur de la notice
Malinverno Bruno ; Guillaume Jacques
Mentions légales
© Inventaire général
Désignation de l'édifice
Titre courant
Hôtel de Houdreville, aujourd'hui mairie
Appellation d'usage
Hôtel de Houdreville
Producteur
Inventaire
Dénomination de l'édifice
hôtel
Destination actuelle de l'édifice
mairie
Localisation au moment de la protection ou de l'étude
Localisation
Grand Est ; Vosges (88) ; Neufchâteau ; 28 rue Saint Jean
Précision sur la localisation
Anciennement région de : Lorraine
Aire d'étude pour le domaine de l'Inventaire
Neufchâteau
Adresse de l'édifice
Saint Jean (rue) 28
Références cadastrales
1810 B 406, 408 ; 1974 AB 484, 505
Milieu d'implantation pour le domaine de l'Inventaire
en ville
Partie constituante non étudiée
puits