Ministère
de la Culture
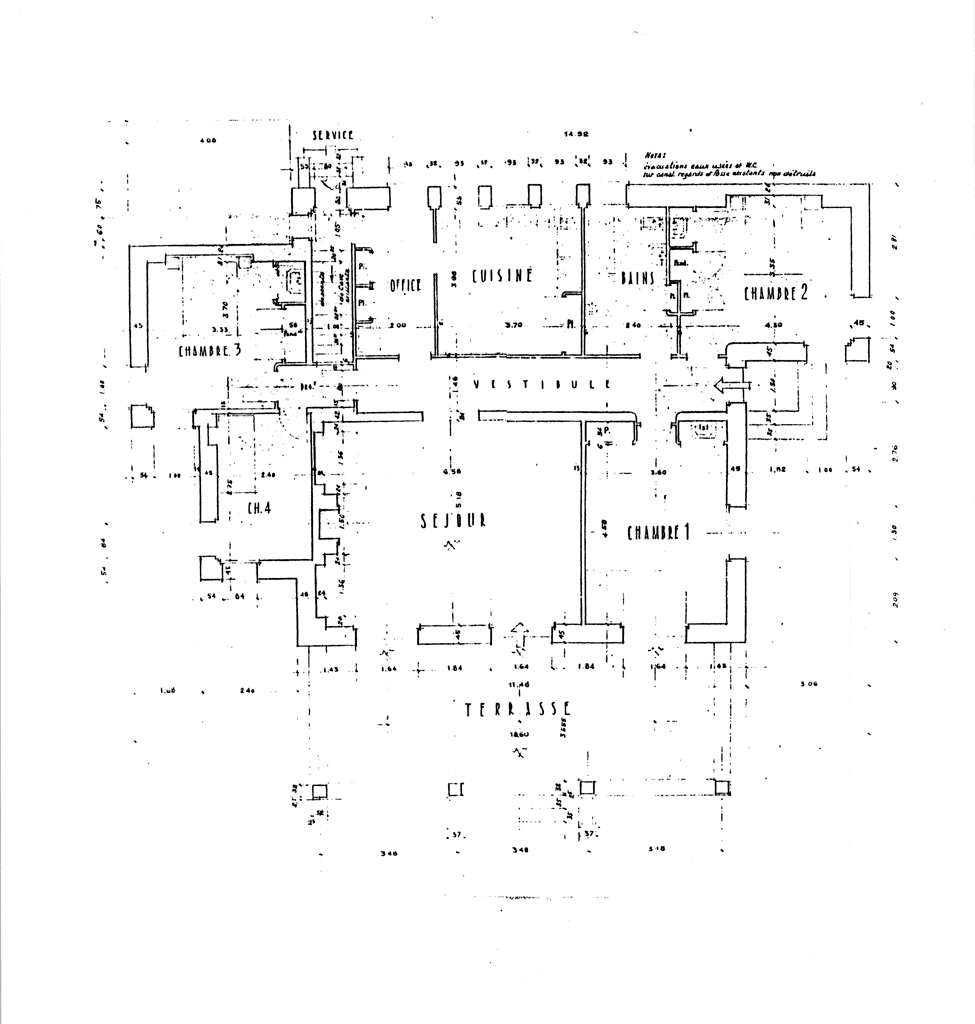
POP | Plateforme ouverte du patrimoineMaison dite Domaine du Layet
Maison dite Domaine du Layet

Référence de la notice
IA00130622
Nom de la base
Patrimoine architectural (Mérimée)
Producteur
Inventaire
Date de création de la notice
16 février 1996
Date de dernière modification de la notice
5 mai 2025
Rédacteur de la notice
Del Rosso Laurent
Mentions légales
(c) Région Provence-Alpes-Côte d'Azur - Inventaire général
Désignation de l'édifice
Titre courant
Maison dite Domaine du Layet
Appellation d'usage
Domaine du Layet
Producteur
Inventaire
Dénomination de l'édifice
maison
Localisation au moment de la protection ou de l'étude
Localisation
Provence-Alpes-Côte d'Azur ; Var (83) ; Le Lavandou ; R.N. 559 de Marseille à Menton ; Layet
Aire d'étude pour le domaine de l'Inventaire
Lavandou (Le)
Canton
Collobrières
Lieu-dit
Layet
Adresse de l'édifice
R.N. 559 de Marseille à Menton
Références cadastrales
1983 C5 3015, 3016, 3018, 3020
Milieu d'implantation pour le domaine de l'Inventaire
en écart
Partie constituante non étudiée
chapelle ; parc