Ministère
de la Culture
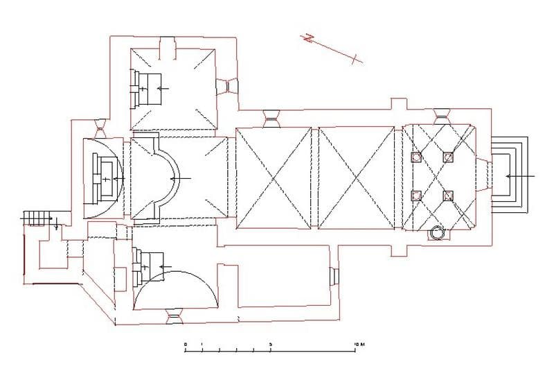
POP | Plateforme ouverte du patrimoinechapelle, puis église paroissiale Notre-Dame-de-l'Assomption, puis Saint-Barnabé
chapelle, puis église paroissiale Notre-Dame-de-l'Assomption, puis Saint-Barnabé






Référence de la notice
IA04000135
Nom de la base
Patrimoine architectural (Mérimée)
Producteur
Inventaire
Date de création de la notice
30 octobre 2007
Date de dernière modification de la notice
8 juin 2022
Rédacteur de la notice
Mandon Marie-Cécile ; Sauze Elisabeth
Mentions légales
(c) Région Provence-Alpes-Côte d'Azur - Inventaire général
Désignation de l'édifice
Titre courant
chapelle, puis église paroissiale Notre-Dame-de-l'Assomption, puis Saint-Barnabé
Producteur
Inventaire
Dénomination de l'édifice
chapelle ; église paroissiale
Vocable, pour les édifices cultuels
Notre-Dame-de-l'Assomption ; Saint-Barnabé
Localisation au moment de la protection ou de l'étude
Localisation
Provence-Alpes-Côte d'Azur ; Alpes-de-Haute-Provence (04) ; Soleilhas
Aire d'étude pour le domaine de l'Inventaire
Pays Asses, Verdon, Vaïre, Var
Canton
Castellane
Références cadastrales
1987 C 237 ; 1834 C 1212
Milieu d'implantation pour le domaine de l'Inventaire
en village
Historique de l'édifice
Siècle de campagne principale de construction