Ministère
de la Culture
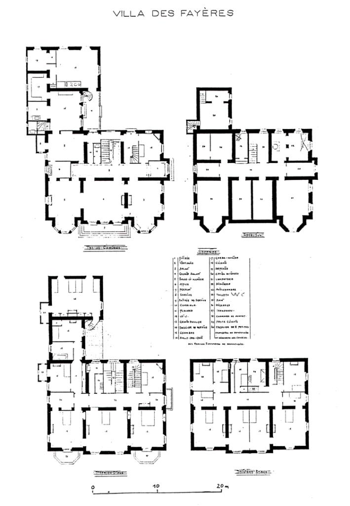
POP | Plateforme ouverte du patrimoinemaison dite Villa des Fayères, puis château des Fayères
maison dite Villa des Fayères, puis château des Fayères

Référence de la notice
IA06000345
Nom de la base
Patrimoine architectural (Mérimée)
Producteur
Inventaire
Date de création de la notice
9 février 2001
Date de dernière modification de la notice
18 décembre 2024
Rédacteur de la notice
Fray François ; Milliet-Mondon Camille
Mentions légales
(c) Région Provence-Alpes-Côte d'Azur - Inventaire général
Désignation de l'édifice
Titre courant
maison dite Villa des Fayères, puis château des Fayères
Appellation d'usage
Villa des Fayères, puis château des Fayères
Producteur
Inventaire
Dénomination de l'édifice
maison
Localisation au moment de la protection ou de l'étude
Localisation
Provence-Alpes-Côte d'Azur ; Alpes-Maritimes (06) ; Cannes ; 14 avenue de Bénéfiat
Aire d'étude pour le domaine de l'Inventaire
Cannes centre
Canton
Cannes
Adresse de l'édifice
Bénéfiat (avenue de) 14
Références cadastrales
1981 CW 212
Milieu d'implantation pour le domaine de l'Inventaire
en ville
Partie constituante non étudiée
dépendance ; escalier indépendant