POP

Plateforme ouverte du patrimoine

Hôtel Duperré

Désignation

Dénomination de l'édifice

Hôtel

Appellation d'usage

Hôtel Duperré

Destination actuelle de l'édifice

Collège

Titre courant

Hôtel Duperré

Localisation

Localisation

Nouvelle-Aquitaine ; Charente-Maritime (17) ; La Rochelle ; 31 rue Albert 1er

Aire d'étude pour le domaine Inventaire

Rochelle centre (La)

Canton

Rochelle (La) VI

Adresse de l'édifice

Albert 1er (rue) 31

Références cadastrales

1976 AL 258 ; 1976 AL 258

Milieu d'implantation pour le domaine Inventaire

En ville

Partie constituante non étudiée

Cour ; jardin ; communs

Historique

Siècle de la campagne principale de construction

4e quart 18e siècle

Siècle de campagne secondaire de consctruction

1er quart 20e siècle

Commentaires concernant la datation

Daté par source ; daté par travaux historiques

Auteur de l'édifice

Description historique

Acheté en 1769 par Duperré, trésorier des guerres, de la marine et des colonies, cet hôtel a été reconstruit sans doute dans le 4e quart du 18e siècle si l'on veut trouver dans les balcons des ailes sur rue, rares à La Rochelle, l'influence du nouvel évêché reconstruit entre 1772 et 1777. Transformé en collège en 1910, il fut alors surélevé et vidé de ses éléments de décor intérieurs.

Description

Matériaux du gros-œuvre

Calcaire ; pierre de taille ; bossage

Matériaux de la couverture

Tuile creuse

Typologie de plan

Plan régulier en H

Description de l'élévation intérieure

Sous-sol ; 1 étage carré ; étage en surcroît

Partie d'élévation extérieure

Élévation ordonnancée

Typologie de couverture

Toit à longs pans ; croupe

Emplacement, forme et structure de l’escalier

Escalier dans-oeuvre : escalier tournant à retours avec jour, en maçonnerie

Technique du décor des immeubles par nature

Sculpture ; ferronnerie

Indexation iconographique normalisée

Ornement à forme végétale ; ornement à forme géométrique ; arabesque

Description de l'iconographie

Sujet : bossages, grecques, gouttes, rosaces, feuilles d'acanthe, support : façades, balcons ; sujet : décor géométrique, arabesques, support : garde-corps des balcons, rampe d'escalier.

Commentaires d'usage régional

Hôtel de plan en U,entre cour et jardin,portail.

Protection et label

Intérêt de l'édifice

À signaler

Statut juridique

Statut juridique du propriétaire

Propriété publique

Références documentaires

Date de l'enquête ou du dernier récolement

1985

Date de rédaction de la notice

1991

Noms des rédacteurs de la notice et du dossier

Mailles Dominique

Cadre de l'étude

Typologie du dossier

Dossier individuel

Adresse du dossier Inventaire

Région Nouvelle-Aquitaine - Service du Patrimoine et de l’Inventaire, site de Poitiers - 102, Grand'Rue - 86020 Poitiers - 05.49.36.30.07

1/8
Façade.
Façade.
(c) Région Nouvelle-Aquitaine, Inventaire général du patrimoine culturel
Voir la notice image
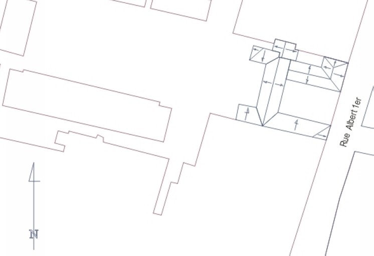
Plan masse, plan schématique des toitures.
Plan masse, plan schématique des toitures.
(c) Région Nouvelle-Aquitaine, Inventaire général du patrimoine culturel
Voir la notice image
Blockhaus dans le jardin.
Blockhaus dans le jardin.
(c) Région Nouvelle-Aquitaine, Inventaire général du patrimoine culturel
Voir la notice image
Puits avec élévateur d'eau.
Puits avec élévateur d'eau.
(c) Région Nouvelle-Aquitaine, Inventaire général du patrimoine culturel
Voir la notice image
Aile sud, intérieur, départ de l'escalier.
Aile sud, intérieur, départ de l'escalier.
(c) Région Nouvelle-Aquitaine, Inventaire général du patrimoine culturel
Voir la notice image
Elévations postérieures sur jardin.
Elévations postérieures sur jardin.
(c) Région Nouvelle-Aquitaine, Inventaire général du patrimoine culturel
Voir la notice image
Elévations antérieures sur cour.
Elévations antérieures sur cour.
(c) Région Nouvelle-Aquitaine, Inventaire général du patrimoine culturel
Voir la notice image
Elévations sur rue.
Elévations sur rue.
(c) Région Nouvelle-Aquitaine, Inventaire général du patrimoine culturel
Voir la notice image