POP

Plateforme ouverte du patrimoine

Hôtel Lanusse, actuellement préfecture

Désignation

Dénomination de l'édifice

Hôtel

Appellation d'usage

Hôtel Lanusse

Destination actuelle de l'édifice

Préfecture

Titre courant

Hôtel Lanusse, actuellement préfecture

Localisation

Localisation

Nouvelle-Aquitaine ; Charente-Maritime (17) ; La Rochelle ; 38 rue Réaumur

Aire d'étude pour le domaine Inventaire

Rochelle centre (La)

Canton

Rochelle (La) VI

Adresse de l'édifice

Réaumur (rue) 38

Références cadastrales

1976 EL 10 ; 1976 EL 10

Milieu d'implantation pour le domaine Inventaire

En ville

Partie constituante non étudiée

Cour ; jardin ; communs

Historique

Siècle de la campagne principale de construction

4e quart 18e siècle ; 1er quart 19e siècle

Siècle de campagne secondaire de consctruction

3e quart 20e siècle

Commentaires concernant la datation

Daté par source ; daté par travaux historiques

Auteur de l'édifice

Description historique

Hôtel construit, comme l'hôtel Poupet voisin, vers 1785 sur l'emplacement d'une maison achetée en 1783 par le négociant Jean Lanusse. Il fut vendu en 1814 pour devenir préfecture. Côté jardin, au-dessus des baies du deuxième niveau de la façade, quatre panneaux représentant les arts libéraux pourraient être antérieurs à la construction de l'hôtel et seraient alors des remplois. Vers 1950, le péristyle de l'élévation sur jardin a été supprimé et un corps de bâtiment en rez-de-chaussée a été ajouté en avant de la façade pour abriter la salle de réunion du conseil général. A la même époque, la partie est sur la rue Réaumur a été surélevée. sa distribution intérieure et ses élévations ont été modifiées.

Description

Matériaux du gros-œuvre

Calcaire ; pierre de taille ; bossage

Matériaux de la couverture

Tuile creuse

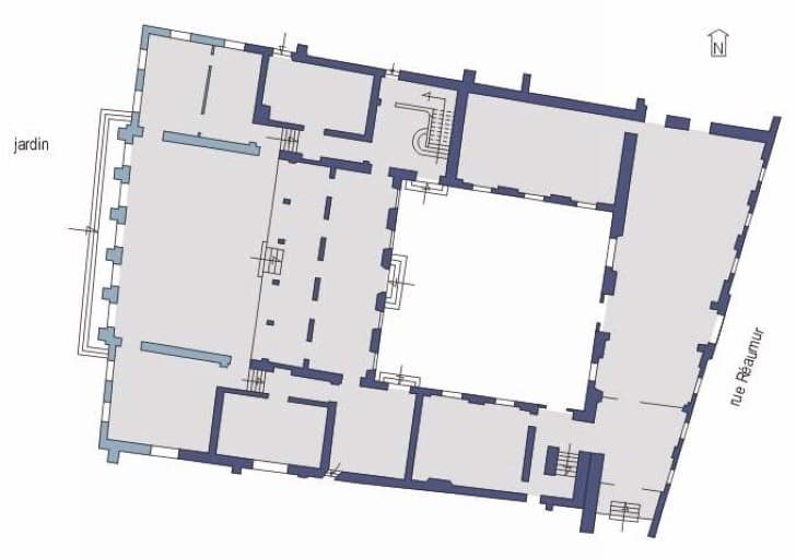
Typologie de plan

Plan régulier en H

Description de l'élévation intérieure

Sous-sol ; 1 étage carré ; étage en surcroît

Partie d'élévation extérieure

Élévation ordonnancée

Typologie de couverture

Toit à longs pans ; croupe

Emplacement, forme et structure de l’escalier

Escalier dans-oeuvre : escalier tournant à retours avec jour, en maçonnerie

Commentaire descriptif de l'édifice

Hôtel avec cour et jardin, de plan en H, dont les ailes sont prolongées de part et d'autre de la cour qui est fermée sur la rue par un corps de bâtiment autrefois occupé par des communs. Le corps de bâtiment principal comporte un étage carré et un étage en surcroît. Au rez-de-chaussée, il est en grande partie occupé par un hall aux murs lambrissés, mais l'escalier principal en pierre, avec rampe en ferronnerie, est logé dans l'aile nord.

Technique du décor des immeubles par nature

Ferronnerie ; menuiserie ; sculpture ; sculpture (étudiée dans la base Palissy)

Indexation iconographique normalisée

Ornement à forme végétale ; chêne ; volute ; ordre toscan ; ornement à forme géométrique ; ruban

Description de l'iconographie

Les portes sur la cour du corps de bâtiment principal sont surmontées de corniches soutenues par des consoles en forme de volute et agrémentées d'un décor de feuillage. La façade sur jardin présente des colonnes toscanes. Dans le hall, au-dessus des portes à décor géométrique et végétal se trouve un panneau orné d'un trophée avec rubans et branches de chêne. La rampe de l'escalier en ferronnerie a un décor de losanges et des cheminées en marbre sont ornées de cannelures et de motifs végétaux.

Commentaires d'usage régional

Hôtel de plan en H,entre cour et jardin,passage couvert.

Protection et label

Référence aux objets conservés

IM17004003 ; IM17004001 ; IM17004002

Intérêt de l'édifice

À signaler

Statut juridique

Statut juridique du propriétaire

Propriété publique

Références documentaires

Date de l'enquête ou du dernier récolement

1985

Date de rédaction de la notice

1996

Noms des rédacteurs de la notice et du dossier

Mailles Dominique

Cadre de l'étude

Typologie du dossier

Dossier individuel

Accès Mémoire

AOI ; architecture domestique

Adresse du dossier Inventaire

Région Nouvelle-Aquitaine - Service du Patrimoine et de l’Inventaire, site de Poitiers - 102, Grand'Rue - 86020 Poitiers - 05.49.36.30.07

1/24
Elévation sur rue.
Elévation sur rue.
(c) Région Nouvelle-Aquitaine, Inventaire général du patrimoine culturel
Voir la notice image
Plan masse, plan schématique des toitures.
Plan masse, plan schématique des toitures.
(c) Région Nouvelle-Aquitaine, Inventaire général du patrimoine culturel
Voir la notice image
Plan schématique du rez-de-chaussée.
Plan schématique du rez-de-chaussée.
(c) Région Nouvelle-Aquitaine, Inventaire général du patrimoine culturel
Voir la notice image
Aile sud, élévation sur cour.
Aile sud, élévation sur cour.
(c) Région Nouvelle-Aquitaine, Inventaire général du patrimoine culturel
Voir la notice image
Corps de bâtiment est, élévation ouest sur cour.
Corps de bâtiment est, élévation ouest sur cour.
(c) Région Nouvelle-Aquitaine, Inventaire général du patrimoine culturel
Voir la notice image
Corps de bâtiment principal, hall, porte au nord.
Corps de bâtiment principal, hall, porte au nord.
(c) Région Nouvelle-Aquitaine, Inventaire général du patrimoine culturel
Voir la notice image
Corps de bâtiment principal, hall, porte au sud.
Corps de bâtiment principal, hall, porte au sud.
(c) Région Nouvelle-Aquitaine, Inventaire général du patrimoine culturel
Voir la notice image
Escalier au nord vu depuis le rez-de-chaussée.
Escalier au nord vu depuis le rez-de-chaussée.
(c) Région Nouvelle-Aquitaine, Inventaire général du patrimoine culturel
Voir la notice image
Partie ajoutée à l'ouest sur le jardin, salle du conseil vue vers le nord-ouest.
Partie ajoutée à l'ouest sur le jardin, salle du conseil vue vers le nord-ouest.
(c) Région Nouvelle-Aquitaine, Inventaire général du patrimoine culturel
Voir la notice image
Elévation est sur rue.
Elévation est sur rue.
(c) Région Nouvelle-Aquitaine, Inventaire général du patrimoine culturel
Voir la notice image
Corps de bâtiment ouest et aile sud, élévations sur la cour.
Corps de bâtiment ouest et aile sud, élévations sur la cour.
(c) Région Nouvelle-Aquitaine, Inventaire général du patrimoine culturel
Voir la notice image
Corps de bâtiment principal, élévation est sur cour.
Corps de bâtiment principal, élévation est sur cour.
(c) Région Nouvelle-Aquitaine, Inventaire général du patrimoine culturel
Voir la notice image
Elévation ouest sur le jardin.
Elévation ouest sur le jardin.
(c) Région Nouvelle-Aquitaine, Inventaire général du patrimoine culturel
Voir la notice image
Etage, pièce sud, bureau du préfet vu vers le sud-ouest.
Etage, pièce sud, bureau du préfet vu vers le sud-ouest.
(c) Région Nouvelle-Aquitaine, Inventaire général du patrimoine culturel
Voir la notice image
Elévation sur cour, détail d'une porte, console soutenant la corniche.
Elévation sur cour, détail d'une porte, console soutenant la corniche.
(c) Région Nouvelle-Aquitaine, Inventaire général du patrimoine culturel
Voir la notice image
Elévation sur cour, détail d'une porte, console soutenant la corniche.
Elévation sur cour, détail d'une porte, console soutenant la corniche.
(c) Région Nouvelle-Aquitaine, Inventaire général du patrimoine culturel
Voir la notice image
Buste en terre cuite (h. 48 cm), signé Jean Target sculpteur. 1955. Il est conservé dans la salle du Conseil général.
Buste en terre cuite (h. 48 cm), signé Jean Target sculpteur. 1955. Il est conservé dans la salle du Conseil général.
(c) Région Nouvelle-Aquitaine, Inventaire général du patrimoine culturel
Voir la notice image
Etage, pièce sud, bureau du préfet vu vers le sud-ouest.
Etage, pièce sud, bureau du préfet vu vers le sud-ouest.
(c) Région Nouvelle-Aquitaine, Inventaire général du patrimoine culturel
Voir la notice image
Etage, seconde pièce depuis le sud, cheminée en marbre.
Etage, seconde pièce depuis le sud, cheminée en marbre.
(c) Région Nouvelle-Aquitaine, Inventaire général du patrimoine culturel
Voir la notice image
Elévation postérieure sur le jardin, avant-corps gauche, relief à gauche au-dessus de la fenêtre du premier étage : la Sculpture.
Elévation postérieure sur le jardin, avant-corps gauche, relief à gauche au-dessus de la fenêtre du premier étage : la Sculpture.
(c) Région Nouvelle-Aquitaine, Inventaire général du patrimoine culturel
Voir la notice image
Elévation postérieure sur le jardin, avant-corps gauche, relief à droite au-dessus de la fenêtre du premier étage : l'Architecture.
Elévation postérieure sur le jardin, avant-corps gauche, relief à droite au-dessus de la fenêtre du premier étage : l'Architecture.
(c) Région Nouvelle-Aquitaine, Inventaire général du patrimoine culturel
Voir la notice image
Elévation postérieure sur le jardin, avant-corps droit, relief à gauche au-dessus de la fenêtre du premier étage : la Musique.
Elévation postérieure sur le jardin, avant-corps droit, relief à gauche au-dessus de la fenêtre du premier étage : la Musique.
(c) Région Nouvelle-Aquitaine, Inventaire général du patrimoine culturel
Voir la notice image
Elévation postérieure sur le jardin, avant-corps droit, relief à droite au-dessus de la fenêtre du premier étage : la Peinture.
Elévation postérieure sur le jardin, avant-corps droit, relief à droite au-dessus de la fenêtre du premier étage : la Peinture.
(c) Région Nouvelle-Aquitaine, Inventaire général du patrimoine culturel
Voir la notice image
Etage, pièce sud, bureau du préfet, cheminée.
Etage, pièce sud, bureau du préfet, cheminée.
(c) Région Nouvelle-Aquitaine, Inventaire général du patrimoine culturel
Voir la notice image