Ministère
de la Culture
POP | Plateforme ouverte du patrimoinehôtel Pétremand de Valay, actuellement banque de France
hôtel Pétremand de Valay, actuellement banque de France




Référence de la notice
IA25000212
Nom de la base
Patrimoine architectural (Mérimée)
Producteur
Inventaire
Date de création de la notice
18 mars 2003
Date de dernière modification de la notice
21 septembre 2020
Rédacteur de la notice
Roussel Christiane
Mentions légales
© Région Franche-Comté, Inventaire du patrimoine
Désignation de l'édifice
Titre courant
hôtel Pétremand de Valay, actuellement banque de France
Appellation d'usage
Hôtel Pétremand de Valay
Producteur
Inventaire
Dénomination de l'édifice
hôtel
Destination actuelle de l'édifice
banque de France
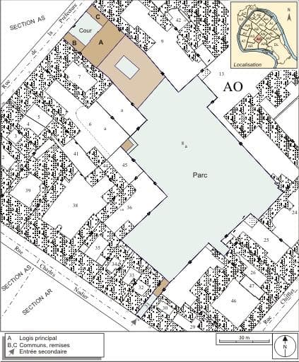
Localisation au moment de la protection ou de l'étude
Localisation
Bourgogne-Franche-Comté ; Doubs (25) ; Besançon ; 19 rue de la Préfecture ; Banque de France (îlot)
Précision sur la localisation
Anciennement région de : Franche-Comté
Aire d'étude pour le domaine de l'Inventaire
Besançon centre
Canton
Besançon centre ville
Lieu-dit
Banque de France (îlot)
Adresse de l'édifice
Préfecture (rue de la) 19
Références cadastrales
1833 K2 510 à 511 ; 1993 AO 8
Milieu d'implantation pour le domaine de l'Inventaire