POP

Plateforme ouverte du patrimoine

Grange

Désignation

Dénomination de l'édifice

Grange

Titre courant

Grange

Localisation

Localisation

Centre-Val de Loire ; Loiret (45) ; Cravant ; 5 V.C. n° 2

Aire d'étude pour le domaine Inventaire

Beaugency

Lieu-dit

Grand Rilly (le)

Adresse de l'édifice

N° 2 (V.C.) 5

Références cadastrales

1828 A 1055 bis ; 1985 D 314

Milieu d'implantation pour le domaine Inventaire

En écart

Historique

Siècle de la campagne principale de construction

3e quart 15e siècle ; 4e quart 18e siècle

Année(s) de(s) campagne(s) de construction

1458 ; 1776 ; 1777

Commentaires concernant la datation

Datation par dendrochronologie

Auteur de l'édifice

Description historique

Grange ayant fait l'objet d'une expertise dendrochronologique. L'analyse des bois signale une reprise de la charpente au moins sur la première ferme sud-est. Douze échantillons ont été prélevés, un sur chaque poteau, sur les entraits et sur trois aisseliers reliant les poteaux aux entraits des 2e et 3e fermes. A l'exception de l'entrait de la 1ère ferme et de son poteau sud-est, dont la coupe des bois remonte respectivement à l'automne/hiver 1776/1777 et 1480 environ, le reste des échantillons donne une coupe des bois en 1458 environ. Nous sommes donc en face d'une grange édifiée aux alentours de 1460, tout de suite après le fin de la guerre de Cent Ans. Or, l'étude de la ville Beaugency et du canton a montré une forte reconstruction durant la seconde moitié du 15e siècle et le 1er tiers du 16e siècle.

Description

Matériaux du gros-œuvre

Calcaire ; moellon ; enduit

Matériaux de la couverture

Tuile mécanique

Typologie de plan

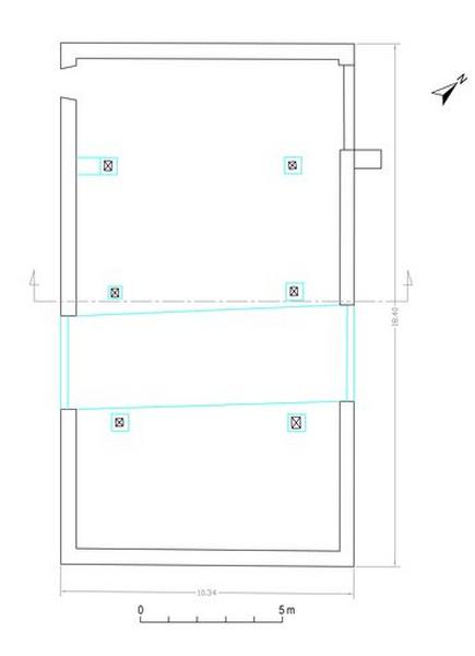
Plan rectangulaire régulier

Description de l'élévation intérieure

3 vaisseaux

Typologie de couverture

Toit à longs pans

Commentaire descriptif de l'édifice

C'est une grange à trois nefs d'environ 17 m de long sur 9 m de large en oeuvre dont la charpente à pannes repose sur deux files de trois poteaux et dont les bas-côtés sont très étroits : 6 m de large environ pour le vaisseau central et une largeur variant de 1 à 1, 50 m dans les bas-côtés. Nous n'avons pas étudié dans le détail cette charpente qui présente des particularités tant de structure que dans les résultats dendrochronologiques. Elle semble en effet avoir fait l'objet de reprises. Entre autres, on relève la présence de tenons chevillés inutilisés sur la tête de plusieurs poteaux indiquant par là un projet primitif avec des pannes à ce niveau qui n'existent pas actuellement. La question se pose donc de savoir si nous sommes en présence d'un projet qui ne fut jamais réalisé ou au contraire exécuté puis remplacé postérieurement par un nouveau projet qui se trouve maintenant sous nos yeux. Faute d'être en mesure de le préciser dans l'état actuel de la question, on peut seulement souligner le caractère original de la structure en place qui est conditionnée par l'étroitesse des bas-côtés. Au lieu de recourir à des demi-fermes dans les bas-côtés dont les arbalétriers se trouvent dans la continuité des arbalétriers des fermes portées par les poteaux à l'instar de la grange de Flux du début du 14e siècle à Lailly-en-Val (voir IA45000080) , le charpentier a plaqué au-dessus de chaque arbalétrier des fermes, à mi-longueur de ces derniers, une pièce de bois taillée plus ou moins en sifflet qui se poursuit et s'engage dans une sorte de demi-entrait disposé au-dessus des bas-côtés et engagé dans les poteaux et les murs gouttereaux . Ces pièces de bois sont rendues solidaires des arbalétriers par des boulons à clavette.

État de conservation (normalisé)

Remanié

Protection et label

Intérêt de l'édifice

À signaler

Eléments remarquables dans l'édifice

Charpente

Observations concernant la protection de l'édifice

Cette grange est la troisième à trois vaisseaux recensée sur le canton. Elle est implantée sur la plateau calcaire de la petite Beauce sur la rive droite de la Loire tandis que les deux autres sont conservées dans la ferme de Flux située sur la commune de Lailly-en-Val et implantée sur le val du fleuve sur sa rive gauche (voir IA45000080). Signalons la grange à un seul vaisseau du début du 16e siècle recensée dans la ferme de Villenouan à Lailly-en-Val (voir IA45000075). Le propriétaire de la grange du Grand Rilly nous a fait savoir qu'à l'époque précédant celle de son père, peut-être vers 1900, cette dernière était à l'usage de son propriétaire et d'un voisin qui en utilisait une partie. C'est ce qui explique le recours à trois portes charretières. Nous avons émis une hypothèse similaire à propos de la grange de la ferme de Flux à Lailly-en-Val dans notre article : La grange seigneuriale de "l'hébergement" de Flux à Lailly-en-Val (Loiret) au XIVe siècle, dans revue électronique in situ, 2006, p. 12

Statut juridique

Statut juridique du propriétaire

Propriété privée

Références documentaires

Date de l'enquête ou du dernier récolement

2008

Date de rédaction de la notice

2008

Noms des rédacteurs de la notice et du dossier

Bontemps Daniel

Cadre de l'étude

Typologie du dossier

Dossier individuel

Adresse du dossier Inventaire

Région Centre-Val de Loire - Service régional de l'Inventaire - 6 rue de la Manufacture 45000 Orléans – 02.38.70.25.06

1/27
Tête du poteau I sud-ouest de la charpente (face sud-est).
Tête du poteau I sud-ouest de la charpente (face sud-est).
© Région Centre - Inventaire général
Voir la notice image
Poteaux II et III nord-est de la charpente.
Poteaux II et III nord-est de la charpente.
© Région Centre - Inventaire général
Voir la notice image
Façade nord-est et dépendances cachant le pignon nord-ouest.
Façade nord-est et dépendances cachant le pignon nord-ouest.
© Région Centre - Inventaire général
Voir la notice image
Poteau I sud-ouest de la charpente.
Poteau I sud-ouest de la charpente.
© Région Centre - Inventaire général
Voir la notice image
Vue partielle du versant nord-est de la charpente au droit des poteaux II et III.
Vue partielle du versant nord-est de la charpente au droit des poteaux II et III.
© Région Centre - Inventaire général
Voir la notice image
Tête du poteau I nord-est de la charpente (face nord-ouest).
Tête du poteau I nord-est de la charpente (face nord-ouest).
© Région Centre - Inventaire général
Voir la notice image
Pignon sud-est longeant la route.
Pignon sud-est longeant la route.
© Région Centre - Inventaire général
Voir la notice image
Charpente vue vers le nord.
Charpente vue vers le nord.
© Région Centre - Inventaire général
Voir la notice image
Partie haute de la charpente vue vers le nord-ouest.
Partie haute de la charpente vue vers le nord-ouest.
© Région Centre - Inventaire général
Voir la notice image
Bas-côté nord-est de la grange.
Bas-côté nord-est de la grange.
© Région Centre - Inventaire général
Voir la notice image
Tête du poteau I nord-est (face nord-ouest).
Tête du poteau I nord-est (face nord-ouest).
© Région Centre - Inventaire général
Voir la notice image
Plan régulier.
Plan régulier.
© Région Centre - Inventaire général
Voir la notice image
Façade sud-ouest et pignon nord-ouest caché par des dépendances.
Façade sud-ouest et pignon nord-ouest caché par des dépendances.
© Région Centre - Inventaire général
Voir la notice image
Tête du poteau II sud-ouest de la charpente (face nord-ouest).
Tête du poteau II sud-ouest de la charpente (face nord-ouest).
© Région Centre - Inventaire général
Voir la notice image
Façade sud-ouest.
Façade sud-ouest.
© Région Centre - Inventaire général
Voir la notice image
Partie haute de la charpente vue vers le nord-ouest.
Partie haute de la charpente vue vers le nord-ouest.
© Région Centre - Inventaire général
Voir la notice image
Versant sud-ouest de la charpente.
Versant sud-ouest de la charpente.
© Région Centre - Inventaire général
Voir la notice image
Tête du poteau III nord-est et amorce de la ferme de la charpente (face sud-est).
Tête du poteau III nord-est et amorce de la ferme de la charpente (face sud-est).
© Région Centre - Inventaire général
Voir la notice image
Clavette d'un boulon enserrant l'arbalétrier d'une ferme avec une pièce de bois qui le prolonge.
Clavette d'un boulon enserrant l'arbalétrier d'une ferme avec une pièce de bois qui le prolonge.
© Région Centre - Inventaire général
Voir la notice image
Tête d'un boulon à clavette enserrant l'arbalétrier d'une ferme avec une pièce de bois qui le prolonge.
Tête d'un boulon à clavette enserrant l'arbalétrier d'une ferme avec une pièce de bois qui le prolonge.
© Région Centre - Inventaire général
Voir la notice image
Intérieur de la grange vue vers le nord-ouest.
Intérieur de la grange vue vers le nord-ouest.
© Région Centre - Inventaire général
Voir la notice image
Partie haute du poteau III nord-est.
Partie haute du poteau III nord-est.
© Région Centre - Inventaire général
Voir la notice image
Entaille bouchée au pied d'un poteau.
Entaille bouchée au pied d'un poteau.
© Région Centre - Inventaire général
Voir la notice image
Tête du poteau II sud-ouest de la charpente (face sud-est).
Tête du poteau II sud-ouest de la charpente (face sud-est).
© Région Centre - Inventaire général
Voir la notice image
Tête du poteau III sud-ouest de la charpente (face nord-ouest).
Tête du poteau III sud-ouest de la charpente (face nord-ouest).
© Région Centre - Inventaire général
Voir la notice image
Tête du poteau III nord-est et départ de la ferme III de la charpente (face sud-est).
Tête du poteau III nord-est et départ de la ferme III de la charpente (face sud-est).
© Région Centre - Inventaire général
Voir la notice image
Coupe transversale simplifiée sur la ferme II, vers le nord ouest.
Coupe transversale simplifiée sur la ferme II, vers le nord ouest.
© Région Centre - Inventaire général
Voir la notice image