Ministère
de la Culture
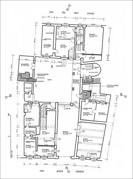
POP | Plateforme ouverte du patrimoinehôtel de Norroy, dit hôtel d'Obelstein actuellement immeuble
hôtel de Norroy, dit hôtel d'Obelstein actuellement immeuble






Référence de la notice
IA54002459
Nom de la base
Patrimoine architectural (Mérimée)
Producteur
Inventaire
Date de création de la notice
10 mars 2017
Date de dernière modification de la notice
21 septembre 2020
Rédacteur de la notice
Elluin Laure ; Tronquart Martine ; Vaxelaire Yann
Mentions légales
© Région Lorraine - Inventaire général
Désignation de l'édifice
Titre courant
hôtel de Norroy, dit hôtel d'Obelstein actuellement immeuble
Appellation d'usage
hôtel de Norroy ; hôtel d'Obelstein
Producteur
Inventaire
Dénomination de l'édifice
hôtel
Destination actuelle de l'édifice
immeuble
Localisation au moment de la protection ou de l'étude
Localisation
Grand Est ; Meurthe-et-Moselle (54) ; Nancy ; 23 rue Saint-Michel ; 16 rue du Duc Raoul ; Ville Vieille ; AN îlot I
Précision sur la localisation
Anciennement région de : Lorraine
Aire d'étude pour le domaine de l'Inventaire
Nancy
Lieu-dit
Ville Vieille ; AN îlot I
Adresse de l'édifice
Saint-Michel (rue) 23 ; Duc Raoul (rue du) 16
Références cadastrales
1830 G 119 ; 1865 G 212, 223, 224, 225 ; 1972 AN 151 ; 2008 AN 151
Milieu d'implantation pour le domaine de l'Inventaire
en ville