POP

Plateforme ouverte du patrimoine

Abbaye de bénédictins Saint-Clément, puis collège de Jésuites, actuellement hôtel de région

Désignation

Dénomination de l'édifice

Abbaye

Genre du destinataire

De bénédictins

Vocable - pour les édifices cultuels

Saint-Clément

Destination actuelle de l'édifice

Collège ; hôtel de région

Titre courant

Abbaye de bénédictins Saint-Clément, puis collège de Jésuites, actuellement hôtel de région

Localisation

Localisation

Grand Est ; Moselle (57) ; Metz ; place Gabriel Hocquard ; place Saint-Clément

Précision sur la localisation

Anciennement région de : Lorraine

Canton

Metz-Ville

Lieu-dit

Pontiffroy (quartier)

Adresse de l'édifice

Gabriel Hocquard (place) ; Saint-Clément (place)

Références cadastrales

2009 07 303, 359, 361, 418, 423, 424, 425

Milieu d'implantation pour le domaine Inventaire

En ville

Historique

Siècle de la campagne principale de construction

Limite 17e siècle 18e siècle ; 3e quart 19e siècle ; 2e quart 20e siècle ; 4e quart 20e siècle

Année(s) de(s) campagne(s) de construction

1669 ; 1855 ; 1932 ; 1987

Commentaires concernant la datation

Daté par source

Commentaires concernant l'attribution de l'édifice

Attribution par source

Personnalités liées à l'histoire de l'édifice

Reynel, François (commanditaire)

Description historique

Abbaye Saint-Clément construite à partir de 1669 sous l'abbatiat de François Reynel (1662-1678) à l'emplacement de l'ancienne abbaye construite entre 1565 et 1567, entièrement disparue. Les travaux commencent par le cloître, ils sont interrompus à de multiples reprises et ne se terminent qu'en 1737 par le portail de l'église conventuelle. Les travaux sont menés par les architectes Jean Spinga (1641-1724) puis Lapierre (1660-1715) (on ne connait pas précisément la part de chacun) , le tailleur de pierre Pierre Le Moyne, les charpentiers Jean Gombert et Jean Etienne. Les bâtiments conventuels étaient disposés autour d'un cloître (disposition connu par un plan de 1790 conservé à la médiathèque de Metz) : le corps nord abritait le réfectoire et la salle du chapitre au rez-de-chaussée, les chambres des moines et l'appartement du prieur à l'étage ; le corps sud abritait la procure, des greniers et des chambres d'hôtes. L'entrée de l'abbaye se faisait au nord, par un portail (détruit dans les années 1980) ouvrant sur le parvis de l'église. La façade principale (ouest) donnait sur un jardin (non documenté) par un escalier droit à une volée double (montées convergentes) ; elle était encadrée de deux pavillons en avancée (le pavillon nord a disparu après 1966 et le pavillon sud a perdu ses dispositions d'origine, la modification de la forme du toit lui ayant fait perdre son statut de pavillon). Au lendemain de la Révolution, l'abbaye est confisquée, les bâtiments conventuels sont affectés au ministère de la guerre qui y installe un entrepôt. En 1855, la Compagnie de Jésus en fait l'acquisition afin d'y installer un collège, dont l'emprise foncière dépasse largement celle de l'ancienne abbaye. Deux projets sont successivement réalisés par le père Mathieu Lauras (1813 - 1882) et son élève Edmond Duthoit (1837-1889) : le 1er, très ambitieux, sera abandonné au profit du second qui comprend la construction, au sud du cloître, de quatre corps de bâtiments autour d'une nouvelle cour (nommée cour du parloir) , dont une chapelle dite chapelle de la Congrégation logée au rez-de-chaussée du nouveau corps sud (IA57002096). De plus, les anciens bâtiments conventuels sont remaniés : le corps sud du cloître et la moitié sud de la façade principale sont alors reconstruits et surélevés d'un étage. En 1872, suite à l'annexion allemande de 1870, les Jésuites sont expulsés et le collège fermé. Les bâtiments connaissent alors des affectations diverses : école normale d'institutrices (1875-1880) puis d'instituteurs jusqu'en 1911, collège d'enseignement catholique en 1911, puis hôpital pour les prisonniers français blessés durant la Première guerre mondiale. A la fin du conflit, alors que le territoire est redevenu français, les Jésuites ouvrent à nouveau le collège et commencent une nouvelle phase de travaux en 1932 cantonnée essentiellement sur la façade ouest : la partie nord est surélevée d'un étage, afin de l'aligner sur la partie sud ; dans le prolongement de la façade vers le sud, est construit un nouveau corps de bâtiment à deux niveaux (aujourd'hui détruit). Durant la Seconde guerre mondiale, les bâtiments servent de camp de passage et de triage pour les travailleurs étrangers puis centre de rapatriement des prisonniers et déportés. En 1945, les Jésuites ouvrent une nouvelle fois le collège jusqu'à se fermeture définitive en 1970. En 1966, un incendie détruit une partie des combles. A partir de 1972, le quartier est totalement restructuré. De nombreux immeubles sont détruits, les anciens bâtiments de l'abbaye et du collège sont restaurés et deviennent Hôtel de Région en 1982. Dès 1983, les bâtiments sont restaurés, les toitures fortement remaniées, l'intérieur réaménagé afin d'y accueillir les bureaux du Conseil Régional ; en 1987 une vaste salle de plan carré (salle des délibérations des assemblées) est aménagée sous la place d'Arros dans le prolongement des bâtiments du côté nord, tandis qu'un parking soute rrain est aménagé du côté sud sous le square Alexis de Tocqueville.

Description

Matériaux du gros-œuvre

Calcaire ; moellon ; enduit

Matériaux de la couverture

Tuile creuse ; ardoise

Typologie de plan

Plan régulier

Description de l'élévation intérieure

Sous-sol ; rez-de-chaussée ; 1 étage carré ; 3 étages carrés

Typologie du couvrement

Voûte d'arêtes

Partie d'élévation extérieure

Élévation à travées

Typologie de couverture

Toit à longs pans ; toit à longs pans brisés

Emplacement, forme et structure de l’escalier

Escalier dans-oeuvre : escalier tournant à retours avec jour, en maçonnerie

Commentaire descriptif de l'édifice

L'ensemble des bâtiments est disposé autour de deux cours, à l'est de l'église (IA57002095). La première cour, carrée, est délimitée par 4 galeries ouvertes voûtées d'arêtes, formant un cloître à arcade (IA57002097) ; la galerie est vient se loger entre les culées des contreforts de l'église ; la galerie nord a gardé son élévation d'origine, à un étage couvert de tuiles creuses, les 2 autres galeries sont à 2 étages (surélévation du milieu du 19e siècle). La partie sud des bâtiments s'organise autour d'une seconde cour dite cour du parloir, de plan rectangulaire ; le corps sud dont le rez-de-chaussée est occupé par une chapelle (chapelle de la Congrégation) est à 3 niveaux d'élévation : le rez-de-chaussée (dont la hauteur équivaut à 2 niveaux des autres corps) est orné d'une arcature en plein cintre dans laquelle s'insèrent les 5 baies de la chapelle (baies composées de 2 formes en plein cintre surmontées d'un tympan à jour et encadrées de fines colonnettes aux chapiteaux à crochets). Les façades sont toutes soulignées par des bandeaux moulurés au niveau des assises de baies, par des corniches en pierre et des chaînes d'angle. La composition de la façade principale (ouest) , qui compte 24 travées, n'est pas homogène : son élévation est à 4 niveaux, sauf le corps donnant sur la 2e cour qui, plus bas, ne compte que 2 niveaux. Les baies permettent de distinguer plusieurs campagnes de travaux ; milieu 19e siècle : baies en plein cintre au rez-de-chaussée, et, pour les étages, jambage à crossettes et linteau mouluré en " chapeau de gendarme ". fin 17-début 18e siècles : linteau droit à plate-bande et jambage en chaîne harpée (sur les 3 niveaux de la partie nord de la façade, et façades sur le cloître). Les toits sont à longs pans, ceux de la façade ouest (corps nord) sont brisés avec lucarnes à frontons pignons. Voûtes d'arêtes au rez-de-chaussée du corps nord. 2 escaliers intérieurs : en pierre à retours, avec jour de plan carré, reposant sur des arcs surbaissés portés par 4 noyaux ; l'escalier nord possède une rampe en pierre à balustres carrés, l'escalier sud une rampe en fer.

Protection et label

Date et niveau de protection de l'édifice

1972/11/02 : classé MH ; 1992/08/31 : classé MH

Précision sur la protection de l'édifice

Église en totalité ; façades et toitures de l'ensemble des bâtiments conventuels ; escalier monumental intérieur ; cloître, y compris sa cour et puits (cad. 7 78, 282/88) : classement par arrêté du 2 novembre 1972 ; ancienne chapelle (de la Congrégation) avec son décor (cad. 7 418/88) : classement par arrêté du 31 août 1992 (annule inscription du 23 06 1988)

Nature de l'acte de protection

Arrêté

Précisions sur les éléments protégés

Église,bâtiment conventuel,cloître,escalier,puits,chapelle

Référence aux objets conservés

IM57004532

Intérêt de l'édifice

À signaler

Eléments remarquables dans l'édifice

Église ; escalier ; cloître ; puits ; chapelle

Statut juridique

Statut juridique du propriétaire

Propriété de la commune

Affectataire de l'édifice

Région

Conditions d'ouverture au public

Ouvert au public

Références documentaires

Date de l'enquête ou du dernier récolement

2009

Date de rédaction de la notice

2009

Noms des rédacteurs de la notice et du dossier

Henry Jean-Yves ; Tronquart Martine

Cadre de l'étude

Typologie du dossier

Dossier avec sous-dossier

Adresse du dossier Inventaire

Conseil régional de Lorraine - service régional de l'inventaire général Hôtel Ferraris - 29, rue du Haut Bourgeois 54000 Nancy - 03.83.32.90.63

1/116
Vue aérienne de l'ensemble des bâtiments.
Vue aérienne de l'ensemble des bâtiments.
© Région Lorraine - Inventaire général
Voir la notice image
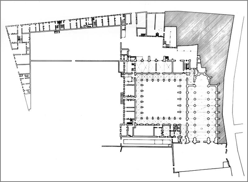
Plan du rez-de-chaussée, ensemble.
Plan du rez-de-chaussée, ensemble.
© Région Lorraine - Inventaire général ; © Ville de Metz
Voir la notice image
Corps ouest, travées centrales, vue depuis la place G. Hocquard.
Corps ouest, travées centrales, vue depuis la place G. Hocquard.
© Région Lorraine - Inventaire général
Voir la notice image
Escalier A dit Saint-Ignace, vue depuis la seconde volée.
Escalier A dit Saint-Ignace, vue depuis la seconde volée.
© Région Lorraine - Inventaire général
Voir la notice image
Vue d'ensemble depuis l'est, vue rapprochée : état vers 1830.
Vue d'ensemble depuis l'est, vue rapprochée : état vers 1830.
© Région Lorraine - Inventaire général ; © Musées de Metz Métropole La Cour d'Or
Voir la notice image
Une salle d'étude du collège.
Une salle d'étude du collège.
© Région Lorraine - Inventaire général ; © Conseil général de la Moselle
Voir la notice image
Coupe transversale des bâtiments conventuels (depuis le nord) : état en 1985.
Coupe transversale des bâtiments conventuels (depuis le nord) : état en 1985.
© Région Lorraine - Inventaire général ; © Ministère de la culture et de la communication
Voir la notice image
Elévations sur les rues du Pontiffroy, Saint-Clément, des Bénédictins et Vincentrue (ilot n°9, figure 1).
Elévations sur les rues du Pontiffroy, Saint-Clément, des Bénédictins et Vincentrue (ilot n°9, figure 1).
© Région Lorraine - Inventaire général ; © Ministère de la culture et de la communication
Voir la notice image
Rue du Pontiffroy, n° 28-64, vers 1973.
Rue du Pontiffroy, n° 28-64, vers 1973.
© Région Lorraine - Inventaire général
Voir la notice image
Corps ouest, travées sud, vue depuis la place G. Hocquard.
Corps ouest, travées sud, vue depuis la place G. Hocquard.
© Région Lorraine - Inventaire général
Voir la notice image
Corps nord, rez-de-chaussée : escalier d'accès à la salle des délibérations.
Corps nord, rez-de-chaussée : escalier d'accès à la salle des délibérations.
© Région Lorraine - Inventaire général
Voir la notice image
Plan de situation de l'abbaye : détail d'un plan d'ensemble de la ville durant l'Annexion allemande (20095710215NUC2A).
Plan de situation de l'abbaye : détail d'un plan d'ensemble de la ville durant l'Annexion allemande (20095710215NUC2A).
© Région Lorraine - Inventaire général ; © Ville de Metz
Voir la notice image
Vue d'ensemble depuis le nord, vue rapprochée : état vers 1830.
Vue d'ensemble depuis le nord, vue rapprochée : état vers 1830.
© Région Lorraine - Inventaire général ; © Musées de Metz Métropole La Cour d'Or
Voir la notice image
Plan du rez-de-chaussée : état en 1985.
Plan du rez-de-chaussée : état en 1985.
© Région Lorraine - Inventaire général ; © Ministère de la culture et de la communication
Voir la notice image
Elévation de la façade du collège, vers 1970 (après l'incendie).
Elévation de la façade du collège, vers 1970 (après l'incendie).
© Région Lorraine - Inventaire général
Voir la notice image
Entrée du collège rue du Pontiffroy, vers 1970 (avant la destruction du quartier).
Entrée du collège rue du Pontiffroy, vers 1970 (avant la destruction du quartier).
© Région Lorraine - Inventaire général
Voir la notice image
Corps ouest, vue générale depuis la place G. Hocquard.
Corps ouest, vue générale depuis la place G. Hocquard.
© Région Lorraine - Inventaire général
Voir la notice image
Corps nord et élévation postérieure de l'église, vue depuis la place d'Arros.
Corps nord et élévation postérieure de l'église, vue depuis la place d'Arros.
© Région Lorraine - Inventaire général
Voir la notice image
Corps nord, sous-sol : bar de la salle des délibérations, vue depuis l'est.
Corps nord, sous-sol : bar de la salle des délibérations, vue depuis l'est.
© Région Lorraine - Inventaire général
Voir la notice image
Coupe est-ouest des bâtiments conventuels (depuis l'est) : état en 1985.
Coupe est-ouest des bâtiments conventuels (depuis l'est) : état en 1985.
© Région Lorraine - Inventaire général ; © Ministère de la culture et de la communication
Voir la notice image
Coupe longitudinale des bâtiments conventuels (depuis l'est) : état projeté (deuxième tranche de travaux, 1985).
Coupe longitudinale des bâtiments conventuels (depuis l'est) : état projeté (deuxième tranche de travaux, 1985).
© Région Lorraine - Inventaire général ; © Ministère de la culture et de la communication
Voir la notice image
Façade ouest (2) travées sud (fin 17e siècle et milieu 19e siècle) : état en 1985.
Façade ouest (2) travées sud (fin 17e siècle et milieu 19e siècle) : état en 1985.
© Région Lorraine - Inventaire général ; © Ministère de la culture et de la communication
Voir la notice image
Escalier A dit Saint-Ignace, vue depuis le premier palier.
Escalier A dit Saint-Ignace, vue depuis le premier palier.
© Région Lorraine - Inventaire général
Voir la notice image
Corps ouest, vue générale depuis la rue des Bénédictins.
Corps ouest, vue générale depuis la rue des Bénédictins.
© Région Lorraine - Inventaire général
Voir la notice image
Plan du rez-de-chaussée (en rose clair : école normale d'institutrices, en rose foncé : partie en location).
Plan du rez-de-chaussée (en rose clair : école normale d'institutrices, en rose foncé : partie en location).
© Région Lorraine - Inventaire général ; © Ministère de la culture et de la communication
Voir la notice image
Restitution en perspective de l'ensemble des bâtiments, état n° 3 : 1932-1966.
Restitution en perspective de l'ensemble des bâtiments, état n° 3 : 1932-1966.
© Région Lorraine - Inventaire général
Voir la notice image
Jardin du parloir, vue depuis la terrasse du corps ouest.
Jardin du parloir, vue depuis la terrasse du corps ouest.
© Région Lorraine - Inventaire général
Voir la notice image
Escalier B dit grand escalier, volées d'accès au 4ème étage : baies.
Escalier B dit grand escalier, volées d'accès au 4ème étage : baies.
© Région Lorraine - Inventaire général
Voir la notice image
Elévation de la façade ouest : projet n° 1 pour le collège de Jésuites, 1855.
Elévation de la façade ouest : projet n° 1 pour le collège de Jésuites, 1855.
© Région Lorraine - Inventaire général ; © Archives françaises de la Compagnie de Jésus ; © éditions Gérard Klopp
Voir la notice image
Plan de couverture : état projeté (deuxième tranche de travaux, 1985).
Plan de couverture : état projeté (deuxième tranche de travaux, 1985).
© Région Lorraine - Inventaire général ; © Ministère de la culture et de la communication
Voir la notice image
Elévation de la façade ouest : état projeté (deuxième tranche de travaux, 1985).
Elévation de la façade ouest : état projeté (deuxième tranche de travaux, 1985).
© Région Lorraine - Inventaire général ; © Ministère de la culture et de la communication
Voir la notice image
Elévations partielles du corps ouest (travées nord), façades antérieure et postérieure : état projeté (deuxième tranche de travaux, 1985).
Elévations partielles du corps ouest (travées nord), façades antérieure et postérieure : état projeté (deuxième tranche de travaux, 1985).
© Région Lorraine - Inventaire général ; © Ministère de la culture et de la communication
Voir la notice image
Elévation partielle de la façade nord (travée est) et détails de croisées : état projeté (deuxième tranche de travaux, 1985).
Elévation partielle de la façade nord (travée est) et détails de croisées : état projeté (deuxième tranche de travaux, 1985).
© Région Lorraine - Inventaire général ; © Ministère de la culture et de la communication
Voir la notice image
Plan du rez-de-chaussée du collège, annoté.
Plan du rez-de-chaussée du collège, annoté.
© Région Lorraine - Inventaire général ; © Archives françaises de la Compagnie de Jésus ; © éditions Gérard Klopp
Voir la notice image
Superposition du plan cadastral du début du 20e siècle (plan allemand conservé aux Archives municipales de Metz) et du plan actuel.
Superposition du plan cadastral du début du 20e siècle (plan allemand conservé aux Archives municipales de Metz) et du plan actuel.
© Région Lorraine - Inventaire général ; © Ville de Metz
Voir la notice image
Plan du rez-de-chaussée : projet n° 2 pour le collège de Jésuites, 1855.
Plan du rez-de-chaussée : projet n° 2 pour le collège de Jésuites, 1855.
© Région Lorraine - Inventaire général ; © Ville de Metz
Voir la notice image
Vue en perspective depuis le nord (la représentation des clochers semble fantaisiste).
Vue en perspective depuis le nord (la représentation des clochers semble fantaisiste).
© Région Lorraine - Inventaire général ; © Musées de Metz Métropole La Cour d'Or
Voir la notice image
Plan du 2e étage (en rose clair : école normale d'institutrices, en rose foncé : partie en location).
Plan du 2e étage (en rose clair : école normale d'institutrices, en rose foncé : partie en location).
© Région Lorraine - Inventaire général ; © Ministère de la culture et de la communication
Voir la notice image
Plan du rez-de-chaussée : projet n° 1 pour le collège de Jésuites, 1855 (non réalisé).
Plan du rez-de-chaussée : projet n° 1 pour le collège de Jésuites, 1855 (non réalisé).
© Région Lorraine - Inventaire général ; © Archives françaises de la Compagnie de Jésus ; © éditions Gérard Klopp
Voir la notice image
Coupe transversale du corps de bâtiment ouest : état projeté (deuxième tranche de travaux, 1985).
Coupe transversale du corps de bâtiment ouest : état projeté (deuxième tranche de travaux, 1985).
© Région Lorraine - Inventaire général ; © Ministère de la culture et de la communication
Voir la notice image
Plan de l'entresol (en rose clair : école normale d'institutrices, en rose foncé : partie en location).
Plan de l'entresol (en rose clair : école normale d'institutrices, en rose foncé : partie en location).
© Région Lorraine - Inventaire général ; © Ministère de la culture et de la communication
Voir la notice image
L'entrée du collège sur la Vincentrue dans les années 1960, avant la destruction des immeubles de la rue.
L'entrée du collège sur la Vincentrue dans les années 1960, avant la destruction des immeubles de la rue.
© Région Lorraine - Inventaire général ; © éditions Gérard Klopp
Voir la notice image
Constructions provisoires dans le cloître vers 1945.
Constructions provisoires dans le cloître vers 1945.
© Région Lorraine - Inventaire général ; © éditions Gérard Klopp
Voir la notice image
Elévation de la façade nord : état en 1985.
Elévation de la façade nord : état en 1985.
© Région Lorraine - Inventaire général ; © Ministère de la culture et de la communication
Voir la notice image
Cloître et tribune : plan, coupe, élévation de pile et balustre.
Cloître et tribune : plan, coupe, élévation de pile et balustre.
© Région Lorraine - Inventaire général ; © Ministère de la culture et de la communication
Voir la notice image
Coupe.
Coupe.
© Région Lorraine - Inventaire général ; © Ville de Metz
Voir la notice image
Coupe longitudinale des bâtiments conventuels : état en 1985.
Coupe longitudinale des bâtiments conventuels : état en 1985.
© Région Lorraine - Inventaire général ; © Ministère de la culture et de la communication
Voir la notice image
Plans et coupes de l'escalier nord-ouest : état projeté (deuxième tranche de travaux, 1985).
Plans et coupes de l'escalier nord-ouest : état projeté (deuxième tranche de travaux, 1985).
© Région Lorraine - Inventaire général ; © Ministère de la culture et de la communication
Voir la notice image
Plan de situation (2).
Plan de situation (2).
© Région Lorraine - Inventaire général ; © Ministère de la culture et de la communication
Voir la notice image
Le parloir du collège.
Le parloir du collège.
© Région Lorraine - Inventaire général ; © Conseil général de la Moselle
Voir la notice image
La façade principale du collège après 1932.
La façade principale du collège après 1932.
© Région Lorraine - Inventaire général
Voir la notice image
Plan de situation du collège à la fin du 19e siècle.
Plan de situation du collège à la fin du 19e siècle.
© Région Lorraine - Inventaire général ; © Archives françaises de la Compagnie de Jésus ; © éditions Gérard Klopp
Voir la notice image
Façade nord : état en 1985 (A = pignon du corps ouest, transformé en 1855).
Façade nord : état en 1985 (A = pignon du corps ouest, transformé en 1855).
© Région Lorraine - Inventaire général ; © Ministère de la culture et de la communication
Voir la notice image
Coupes transversale et longitudinale de la salle des délibérations.
Coupes transversale et longitudinale de la salle des délibérations.
© Région Lorraine - Inventaire général
Voir la notice image
Plan cadastral allemand (Flur 7 : section 7), détail.
Plan cadastral allemand (Flur 7 : section 7), détail.
© Région Lorraine - Inventaire général ; © Ville de Metz
Voir la notice image
Plan du rez-de-chaussée du collège.
Plan du rez-de-chaussée du collège.
© Région Lorraine - Inventaire général ; © Archives françaises de la Compagnie de Jésus ; © éditions Gérard Klopp
Voir la notice image
Plan de couverture : état en 1985.
Plan de couverture : état en 1985.
© Région Lorraine - Inventaire général ; © Ministère de la culture et de la communication
Voir la notice image
Coupe transversale des bâtiments conventuels (depuis le nord) : état projeté (deuxième tranche de travaux, 1985).
Coupe transversale des bâtiments conventuels (depuis le nord) : état projeté (deuxième tranche de travaux, 1985).
© Région Lorraine - Inventaire général ; © Ministère de la culture et de la communication
Voir la notice image
Façade ouest (1), travées sud (fin du 17e siècle) : état en 1985.
Façade ouest (1), travées sud (fin du 17e siècle) : état en 1985.
© Région Lorraine - Inventaire général ; © Ministère de la culture et de la communication
Voir la notice image
Schéma de datation des bâtiments (à partir du plan cadastral).
Schéma de datation des bâtiments (à partir du plan cadastral).
© Région Lorraine - Inventaire général
Voir la notice image
Plan des combles (en rose clair : école normale d'institutrices).
Plan des combles (en rose clair : école normale d'institutrices).
© Région Lorraine - Inventaire général ; © Ministère de la culture et de la communication
Voir la notice image
Plan de situation de l'abbaye (lettres portées de A à H) dans le 3e quart du 18e siècle, détail.
Plan de situation de l'abbaye (lettres portées de A à H) dans le 3e quart du 18e siècle, détail.
© Région Lorraine - Inventaire général ; © Ville de Metz
Voir la notice image
La façade ouest entre 1919 et 1932.
La façade ouest entre 1919 et 1932.
© Région Lorraine - Inventaire général ; © Conseil général de la Moselle
Voir la notice image
La cour du collège et la façade ouest, entre 1919 et 1932.
La cour du collège et la façade ouest, entre 1919 et 1932.
© Région Lorraine - Inventaire général ; © Archives françaises de la Compagnie de Jésus ; © éditions Gérard Klopp
Voir la notice image
Plan du rez-de-chaussée : état projeté (deuxième tranche de travaux, 1985).
Plan du rez-de-chaussée : état projeté (deuxième tranche de travaux, 1985).
© Région Lorraine - Inventaire général ; © Ministère de la culture et de la communication
Voir la notice image
Coupe est-ouest des bâtiments conventuels (depuis l'est) : état projeté (deuxième tranche de travaux, 1985).
Coupe est-ouest des bâtiments conventuels (depuis l'est) : état projeté (deuxième tranche de travaux, 1985).
© Région Lorraine - Inventaire général ; © Ministère de la culture et de la communication
Voir la notice image
Elévation de la façade ouest : état en 1985.
Elévation de la façade ouest : état en 1985.
© Région Lorraine - Inventaire général ; © Ministère de la culture et de la communication
Voir la notice image
Plans et coupes de l'escalier nord-ouest : état en 1985.
Plans et coupes de l'escalier nord-ouest : état en 1985.
© Région Lorraine - Inventaire général ; © Ministère de la culture et de la communication
Voir la notice image
Coupe longitudinale des bâtiments : projet n° 1 pour le collège de Jésuites, 1855.
Coupe longitudinale des bâtiments : projet n° 1 pour le collège de Jésuites, 1855.
© Région Lorraine - Inventaire général ; © Archives françaises de la Compagnie de Jésus ; © éditions Gérard Klopp
Voir la notice image
Elévation de la façade nord : état projeté (deuxième tranche de travaux, 1985).
Elévation de la façade nord : état projeté (deuxième tranche de travaux, 1985).
© Région Lorraine - Inventaire général ; © Ministère de la culture et de la communication
Voir la notice image
Eglise et corps médian, vue d'ensemble depuis le corps ouest.
Eglise et corps médian, vue d'ensemble depuis le corps ouest.
© Région Lorraine - Inventaire général
Voir la notice image
Escalier A dit Saint-Ignace, vue depuis la 6e volée.
Escalier A dit Saint-Ignace, vue depuis la 6e volée.
© Région Lorraine - Inventaire général
Voir la notice image
Escalier B dit grand escalier, agrafe n° 3.
Escalier B dit grand escalier, agrafe n° 3.
© Région Lorraine - Inventaire général
Voir la notice image
Restitution en perspective de l'ensemble des bâtiments, état n° 4 : après l'incendie de 1966.
Restitution en perspective de l'ensemble des bâtiments, état n° 4 : après l'incendie de 1966.
© Région Lorraine - Inventaire général
Voir la notice image
Corps ouest, travées centrales et sud, vue depuis la place G. Hocquard.
Corps ouest, travées centrales et sud, vue depuis la place G. Hocquard.
© Région Lorraine - Inventaire général
Voir la notice image
Extrémité sud de la galerie Foch, détail des consoles.
Extrémité sud de la galerie Foch, détail des consoles.
© Région Lorraine - Inventaire général
Voir la notice image
Restitution en perspective de l'ensemble des bâtiments, état actuel.
Restitution en perspective de l'ensemble des bâtiments, état actuel.
© Région Lorraine - Inventaire général
Voir la notice image
Elévation de la façade du collège, avant 1932.
Elévation de la façade du collège, avant 1932.
© Région Lorraine - Inventaire général
Voir la notice image
Jardin du parloir, élévation des corps sud et ouest.
Jardin du parloir, élévation des corps sud et ouest.
© Région Lorraine - Inventaire général
Voir la notice image
Plan cadastral.
Plan cadastral.
© Région Lorraine - Inventaire général ; © IGN
Voir la notice image
Restitution en perspective de l'ensemble des bâtiments, état n° 1 : 1737-1855.
Restitution en perspective de l'ensemble des bâtiments, état n° 1 : 1737-1855.
© Région Lorraine - Inventaire général
Voir la notice image
Portail du collège rue du Pontiffroy, vers 1970 (avant la destruction du quartier).
Portail du collège rue du Pontiffroy, vers 1970 (avant la destruction du quartier).
© Région Lorraine - Inventaire général
Voir la notice image
Corps sud, vue depuis la place Saint-Clément.
Corps sud, vue depuis la place Saint-Clément.
© Région Lorraine - Inventaire général
Voir la notice image
Corps médian, tour d'escalier (B) : détail de l'épi de faîtage.
Corps médian, tour d'escalier (B) : détail de l'épi de faîtage.
© Région Lorraine - Inventaire général
Voir la notice image
Escalier A dit Saint-Ignace, vue depuis le rez-de-chaussée.
Escalier A dit Saint-Ignace, vue depuis le rez-de-chaussée.
© Région Lorraine - Inventaire général
Voir la notice image
Cuisine du collège, milieu 20e siècle.
Cuisine du collège, milieu 20e siècle.
© Région Lorraine - Inventaire général
Voir la notice image
Plan schématique portant la dénomination des divers corps de bâtiments.
Plan schématique portant la dénomination des divers corps de bâtiments.
© Région Lorraine - Inventaire général
Voir la notice image
Corps est et façade antérieure de l'église, vue depuis la place Saint-Clément.
Corps est et façade antérieure de l'église, vue depuis la place Saint-Clément.
© Région Lorraine - Inventaire général
Voir la notice image
Corps nord, vue depuis la place d'Arros : détail de toiture.
Corps nord, vue depuis la place d'Arros : détail de toiture.
© Région Lorraine - Inventaire général
Voir la notice image
Cloître, vue d'ensemble depuis le corps ouest.
Cloître, vue d'ensemble depuis le corps ouest.
© Région Lorraine - Inventaire général
Voir la notice image
Passerelle d'accès aux combles de l'église, vue depuis la place d'Arros.
Passerelle d'accès aux combles de l'église, vue depuis la place d'Arros.
© Région Lorraine - Inventaire général
Voir la notice image
Corps ouest, restauration de la toiture et des lucarnes, vers 1986.
Corps ouest, restauration de la toiture et des lucarnes, vers 1986.
© Région Lorraine - Inventaire général
Voir la notice image
Plan du 1er étage (en rose clair : école normale d'institutrices, en rose foncé : partie en location).
Plan du 1er étage (en rose clair : école normale d'institutrices, en rose foncé : partie en location).
© Région Lorraine - Inventaire général ; © Ministère de la culture et de la communication
Voir la notice image
La cour du collège (préau et bâtiments latéraux disparus) après 1922, ensemble.
La cour du collège (préau et bâtiments latéraux disparus) après 1922, ensemble.
© Région Lorraine - Inventaire général ; © Archives françaises de la Compagnie de Jésus
Voir la notice image
Façades sud et ouest : état en 1983, avant restauration.
Façades sud et ouest : état en 1983, avant restauration.
© Région Lorraine - Inventaire général ; © Ministère de la culture et de la communication
Voir la notice image
Plan du rez-de-chaussée, annoté
Plan du rez-de-chaussée, annoté
© Région Lorraine - Inventaire général ; © Ville de Metz
Voir la notice image
Le réfectoire du collège.
Le réfectoire du collège.
© Région Lorraine - Inventaire général ; © Conseil général de la Moselle
Voir la notice image
Plan terrier (croquis géométrique cadastral), 1ère section, 6e feuille, 3e partie.
Plan terrier (croquis géométrique cadastral), 1ère section, 6e feuille, 3e partie.
© Région Lorraine - Inventaire général ; © Ville de Metz
Voir la notice image
Coupe longitudinale des bâtiments conventuels : état projeté (deuxième tranche de travaux, 1985).
Coupe longitudinale des bâtiments conventuels : état projeté (deuxième tranche de travaux, 1985).
© Région Lorraine - Inventaire général ; © Ministère de la culture et de la communication
Voir la notice image
Coupe longitudinale des bâtiments conventuels (depuis l'est) : état en 1985.
Coupe longitudinale des bâtiments conventuels (depuis l'est) : état en 1985.
© Région Lorraine - Inventaire général ; © Ministère de la culture et de la communication
Voir la notice image
Façade ouest (3) : état en 1985, entre 1ère et 2e tranches de travaux (limite enduits neuf et ancien).
Façade ouest (3) : état en 1985, entre 1ère et 2e tranches de travaux (limite enduits neuf et ancien).
© Région Lorraine - Inventaire général ; © Ministère de la culture et de la communication
Voir la notice image
Restitution en perspective de l'ensemble des bâtiments, état n° 2 : 1857-1932.
Restitution en perspective de l'ensemble des bâtiments, état n° 2 : 1857-1932.
© Région Lorraine - Inventaire général
Voir la notice image
Extrémité nord du corps ouest, premier et second étages, vers 1986.
Extrémité nord du corps ouest, premier et second étages, vers 1986.
© Région Lorraine - Inventaire général
Voir la notice image
Jardin du parloir, élévations nord et est, vue depuis le sud.
Jardin du parloir, élévations nord et est, vue depuis le sud.
© Région Lorraine - Inventaire général
Voir la notice image
Corps nord, avant travaux (vers 1985).
Corps nord, avant travaux (vers 1985).
© Région Lorraine - Inventaire général
Voir la notice image
Vue aérienne du quartier du Pontiffroy, vers 1970.
Vue aérienne du quartier du Pontiffroy, vers 1970.
© Région Lorraine - Inventaire général
Voir la notice image
Corps ouest, travées centrales, vue depuis la place G. Hocquard.
Corps ouest, travées centrales, vue depuis la place G. Hocquard.
© Région Lorraine - Inventaire général
Voir la notice image
Escalier A dit Saint-Ignace, vue depuis la seconde volée.
Escalier A dit Saint-Ignace, vue depuis la seconde volée.
© Région Lorraine - Inventaire général
Voir la notice image
Escalier B dit grand escalier, vue depuis le 3ème étage.
Escalier B dit grand escalier, vue depuis le 3ème étage.
© Région Lorraine - Inventaire général
Voir la notice image
Escalier B dit grand escalier, retombées des arc-diaphragmes sur un noyau.
Escalier B dit grand escalier, retombées des arc-diaphragmes sur un noyau.
© Région Lorraine - Inventaire général
Voir la notice image
Schéma de datation des bâtiments.
Schéma de datation des bâtiments.
© Région Lorraine - Inventaire général
Voir la notice image
Situation de l'ensemble des bâtiments dans l'ilot (n°9) : plan des toitures et élévations sur rue (montage).
Situation de l'ensemble des bâtiments dans l'ilot (n°9) : plan des toitures et élévations sur rue (montage).
© Région Lorraine - Inventaire général ; © Ministère de la culture et de la communication
Voir la notice image
Salle des délibérations, vue depuis l'entrée.
Salle des délibérations, vue depuis l'entrée.
© Région Lorraine - Inventaire général
Voir la notice image
Salle des délibérations, vue depuis la tribune.
Salle des délibérations, vue depuis la tribune.
© Région Lorraine - Inventaire général
Voir la notice image
Escalier A dit Saint-Ignace, vue plongeante depuis le second palier.
Escalier A dit Saint-Ignace, vue plongeante depuis le second palier.
© Région Lorraine - Inventaire général
Voir la notice image
Escalier A dit Saint-Ignace : détail d'un balustre.
Escalier A dit Saint-Ignace : détail d'un balustre.
© Région Lorraine - Inventaire général
Voir la notice image