Ministère
de la Culture
POP | Plateforme ouverte du patrimoinetribunal d'instance
tribunal d'instance






Référence de la notice
IA67006106
Nom de la base
Patrimoine architectural (Mérimée)
Producteur
Inventaire
Date de création de la notice
6 juin 1997
Date de dernière modification de la notice
21 septembre 2020
Rédacteur de la notice
Parent Brigitte ; Fritsch Emmanuel
Mentions légales
© Inventaire général
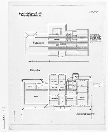
Désignation de l'édifice
Titre courant
tribunal d'instance
Producteur
Inventaire
Dénomination de l'édifice
tribunal
Précision sur la typologie de l'édifice
tribunal d'instance
Localisation au moment de la protection ou de l'étude
Localisation
Grand Est ; Bas-Rhin (67) ; Molsheim ; 3 rue du Maréchal-Kellermann
Précision sur la localisation
Anciennement région de : Alsace
Aire d'étude pour le domaine de l'Inventaire
Molsheim
Adresse de l'édifice
Maréchal-Kellermann (rue du) 3
Références cadastrales
1990 5
Milieu d'implantation pour le domaine de l'Inventaire
en ville
Historique de l'édifice
Siècle de campagne principale de construction