Ministère
de la Culture
POP | Plateforme ouverte du patrimoinefonderie Meyer, puis Vialis, actuellement maison
fonderie Meyer, puis Vialis, actuellement maison

Référence de la notice
IA70000277
Nom de la base
Patrimoine architectural (Mérimée)
Producteur
Inventaire
Date de création de la notice
11 mars 2010
Date de dernière modification de la notice
13 février 2023
Rédacteur de la notice
Favereaux Raphaël
Mentions légales
(c) Région Bourgogne-Franche-Comté, Inventaire du patrimoine
Désignation de l'édifice
Titre courant
fonderie Meyer, puis Vialis, actuellement maison
Appellation d'usage
Fonderie Meyer, puis Vialis
Producteur
Inventaire
Dénomination de l'édifice
fonderie
Destination actuelle de l'édifice
maison
Localisation au moment de la protection ou de l'étude
Localisation
Bourgogne-Franche-Comté ; Haute-Saône (70) ; Saint-Sauveur ; 9 rue Jean-Jacques Rousseau
Précision sur la localisation
anciennement région de : Franche-Comté
Aire d'étude pour le domaine de l'Inventaire
Haute-Saône
Canton
Saint-Sauveur
Adresse de l'édifice
Jean-Jacques Rousseau (rue) 9
Références cadastrales
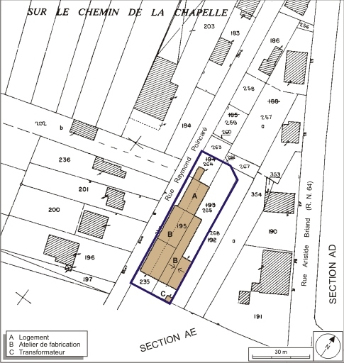
2008 AH 14, 335
Milieu d'implantation pour le domaine de l'Inventaire
en ville
Partie constituante non étudiée
atelier de fabrication ; logement
Historique de l'édifice
Siècle de campagne principale de construction
Siècle de campagne secondaire de construction
2e moitié 20e siècle
Commentaire concernant la datation
daté par source ; daté par tradition orale ; daté par source ; daté par tradition orale
Description historique
La société en commandite simple Meyer et Cie débute en 1925 l'exploitation d'une fonderie de cuivre. Convertie en SA l'année suivante, elle est reprise, vraisemblablement après la Seconde Guerre mondiale, par André Redoutey et Marius Vialis. Connue sous ce dernier patronyme, la fonderie est spécialisée dans la production de bronzes d'art. Dirigée par Marcel Redoutey, puis en 1963 par Mme Grandjean, fille de M. Vialis, la fonderie ajoute au bronze d'art la production de queues de casseroles en laiton, coulées en coquille. Les bâtiments sont agrandis dans la seconde moitié du 20e siècle. L'usine produisait 20 t de produit en laiton par mois en 1978. Elle a été cédée en 1988 à Bruno Redoutey. L'activité a été transférée dans l'ancienne filature de Saint-Sauveur en 2003 (étudiée IA70000260). Les bâtiments ont été reconvertis en habitation.
Description de l'édifice
Matériaux du gros-œuvre
grès ; moellon ; enduit ; béton ; parpaing de béton
Matériaux de la couverture
tuile mécanique ; verre en couverture
Description de l'élévation intérieure
en rez-de-chaussée
Typologie de la couverture
toit à longs pans ; appentis ; shed
Source de l'énergie utilisée par l'édifice
énergie électrique ; achetée
Commentaire descriptif de l'édifice
L'atelier de fonderie est construit en rez-de-chaussée, couvert d'un toit à longs pans et de sheds en tuile mécanique.
État de conservation
établissement industriel désaffecté
Date de l'enquête ou du récolement
2007
Statut juridique
Statut juridique du propriétaire
propriété privée
Références documentaires
Cadre de l'étude
Typologie du dossier
dossier individuel
Date de rédaction de la notice
2007
Mentions légales
(c) Région Bourgogne-Franche-Comté, Inventaire du patrimoine
Sources complémentaires
Adresse de conservation et consultation du dossier
Région Franche-Comté - Direction de l'Inventaire du patrimoine£4, square Castan 25031 Besançon Cedex - 03.63.64.20.00
Voir aussi
URL vers le dossier complet de l'Inventaire
Lien vers le dossier PDF

Référence de la notice
IA70000277
Nom de la base
Patrimoine architectural (Mérimée)
Producteur
Inventaire
Date de création de la notice
11 mars 2010
Date de dernière modification de la notice
13 février 2023
Rédacteur de la notice
Favereaux Raphaël
Mentions légales
(c) Région Bourgogne-Franche-Comté, Inventaire du patrimoine
Contactez-nousEnvoyer un courriel