POP

Plateforme ouverte du patrimoine

Manoir

Désignation

Dénomination de l'édifice

Manoir

Titre courant

Manoir

Localisation

Localisation

Nouvelle-Aquitaine ; Deux-Sèvres (79) ; Beaussais

Aire d'étude pour le domaine Inventaire

Celles-sur-Belle

Lieu-dit

Le Breuil

Références cadastrales

1817 E 4 à 12 ; 1946 E1 25

Milieu d'implantation pour le domaine Inventaire

Isolé

Partie constituante non étudiée

Cour ; logement ; grange ; étable ; écurie ; hangar agricole ; four ; puits

Historique

Siècle de la campagne principale de construction

2e moitié 15e siècle ; 16e siècle ; 17e siècle ; 2e moitié 19e siècle

Commentaires concernant la datation

Daté par source ; daté par travaux historiques

Auteur de l'édifice

Description historique

Un certain Jean de Maroys (ou Maroix) , écuyer, seigneur du Breuil, est mentionné dans un bail à ferme de 1448. Son fils (ou petit-fils) Jacques de Maroys, écuyer, seigneur du Breuil de Beaussais, a rendu deux aveux : en 1485 à François Chabot, seigneur de Jarnac, Aspremont et Beaussais, et en 1497 à Madeleine de Montmorency, dame de Jarnac, Aspremont et Beaussais. Louis de Maroix, seigneur du Breuil de Beaussais, petit-fils de Jacques, et Renée Landry, sa femme, ont échangé cette seigneurie entre 1560 et 1571 contre 100 boiselées de terre avec Julienne de Puyvert, veuve de Jean Landry. L'ensemble du logis semble avoir été bâti en deux temps : un premier logis rectangulaire à étage qui, d'après ses cheminées et ses fenêtres à coussiège et traverse pourrait dater de la seconde de moitié du 15e siècle ; il aurait alors été construit pour Jean de Maroys ou pour son (petit) fils Jacques. Puis un second logis plus modeste (de fermier ?) , sans étage, accolé au sud et communiquant au premier logis, pouvant dater du début du 16e siècle. Dès avant la fin du 16e siècle, le manoir était devenu un bien de rapport qui, par alliances matrimoniales et successions, a fait partie des biens des familles de Nouzières, Garnier, Lévesque, et à partir de 1660 des Frotier de la Coste-Messelière (pour la moitié jusqu'en 1720). Le partage de la succession de 1660 indique clairement que le domaine était donné à bail à deux métayers. C'est ce qui explique que les deux états des lieux de 1706 et 1720 ne décrivent que le petit logis du fermier accolé au sud, tandis que la visite des bâtiments de 1771 décrit l'ensemble des bâtiments. Cet état des lieux détaillé permet de connaître la structure d'origine du grand logis. A cette date il n'est fait mention d'aucun vitrage, signe que le logis n'a pas été habité par les propriétaires depuis très longtemps. L'écurie à juments accolée à l'élévation nord du grand logis existait déjà à cette époque. Roland Larchier, qui a gravé son nom sur une pierre de l'encadrement de la porte d'entrée de cette écurie, est-il le maçon qui l'a bâtie ou restaurée ? Vendu en 1813, l'ensemble a été adjugé à Pierre-Théodore du Rousseau de Fayolle, qui l'a revendu à Louis Loudun, propriétaire à Saint-Maixent, avant 1817. A cette date, le logement était imposé pour deux ouvertures seulement. Il s'agit probablement du petit logis de fermier et non du grand logis dont les fenêtres du rez-de-chaussée avaient été murées. Par la suite, le domaine a appartenu à Louis Robert, juge à Civray (vers 1845-vers 1886) , puis à Armand Gabet, propriétaire à la Gravette (commune de Prailles). Pendant tout le 19e siècle, ce manoir est donc resté une ferme de rapport. A une date inconnue, l'escalier en pierre extérieur a été ajouté, peut-être avec ce qui restait des marches de l'escalier en pierre intérieur qui a totalement disparu. En 1882, le logement est imposé pour quatre ouvertures, ce qui permet d'émettre l'hypothèse que Louis Robert avait fait construire avant cette date le nouveau bâtiment de la grange-étable au sud des bâtiments existants, comprenant un petit logement au nord-ouest, auquel un hangar a été accolé par la suite au nord-est. Depuis 1872 au moins, une famille Fouché exploitait cette propriété d'une cinquantaine de hectares avec quelques domestiques. Par manque d'entretien, le logis s'est dégradé et l'ancienne grange-étable est en ruines. L'ensemble vient d'être acheté par un couple désireux de restaurer ce petit manoir.

Description

Matériaux du gros-œuvre

Calcaire ; moellon ; enduit

Matériaux de la couverture

Tuile creuse

Description de l'élévation intérieure

1 étage carré ; comble à surcroît

Typologie de couverture

Toit à longs pans ; pignon couvert

Emplacement, forme et structure de l’escalier

Escalier de distribution extérieur : escalier droit, en maçonnerie

Commentaire descriptif de l'édifice

Le premier logis à étage est couvert d'une toiture à longs pans et pignons couverts. Il est précédé à l'est par un auvent contenant les vestiges de la tourelle du pigeonnier. Le logis du fermier, accolé au sud, est également couvert d'une toiture à longs pans et pignon couvert. Un escalier droit en pierre, permettant l'accès au comble à surcroît, y est accolé à l'est. Un troisième logement est aménagé au nord-ouest de la grange construite dans la seconde moitié du 19e siècle.

Commentaires d'usage régional

Ferme à dépendances adossées. Grange à façade en gouttereau.

Protection et label

Observations concernant la protection de l'édifice

Ferme dite en 1935 sans intérêt archéologique. Elle contient pourtant deux cheminées monumentales dans l'ancien grand logis.

Statut juridique

Statut juridique du propriétaire

Propriété privée

Références documentaires

Date de l'enquête ou du dernier récolement

2000

Date de rédaction de la notice

2004

Noms des rédacteurs de la notice et du dossier

Liège Aurélie ; Pon Charlotte

Cadre de l'étude

Typologie du dossier

Dossier individuel

Adresse du dossier Inventaire

Région Nouvelle-Aquitaine - Service du Patrimoine et de l’Inventaire, site de Poitiers - 102, Grand'Rue - 86020 Poitiers - 05.49.36.30.07

1/75
Logis, vue d'ensemble prise du sud-est.
Logis, vue d'ensemble prise du sud-est.
(c) Région Nouvelle-Aquitaine, Inventaire général du patrimoine culturel
Voir la notice image
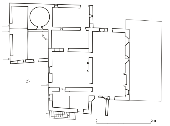
Plan au sol du logis.
Plan au sol du logis.
(c) Région Nouvelle-Aquitaine, Inventaire général du patrimoine culturel
Voir la notice image
Superposition de cadastres.
Superposition de cadastres.
(c) Région Nouvelle-Aquitaine, Inventaire général du patrimoine culturel
Voir la notice image
Plan du logis légendé.
Plan du logis légendé.
(c) Région Nouvelle-Aquitaine, Inventaire général du patrimoine culturel
Voir la notice image
Logis, élévation antérieure est, vue prise de l'est.
Logis, élévation antérieure est, vue prise de l'est.
(c) Région Nouvelle-Aquitaine, Inventaire général du patrimoine culturel
Voir la notice image
Logis, élévation antérieure est, détail de l'avant-corps avec trous de pigeons.
Logis, élévation antérieure est, détail de l'avant-corps avec trous de pigeons.
(c) Région Nouvelle-Aquitaine, Inventaire général du patrimoine culturel
Voir la notice image
Logis, élévation antérieure est, l'avant-corps, détail des trous de pigeons à gauche.
Logis, élévation antérieure est, l'avant-corps, détail des trous de pigeons à gauche.
(c) Région Nouvelle-Aquitaine, Inventaire général du patrimoine culturel
Voir la notice image
Logis, élévation antérieure est, l'avant-corps, détail des trous de pigeons à droite.
Logis, élévation antérieure est, l'avant-corps, détail des trous de pigeons à droite.
(c) Région Nouvelle-Aquitaine, Inventaire général du patrimoine culturel
Voir la notice image
Logis, élévation antérieure est, corps de logis, étage, fenêtre à traverse.
Logis, élévation antérieure est, corps de logis, étage, fenêtre à traverse.
(c) Région Nouvelle-Aquitaine, Inventaire général du patrimoine culturel
Voir la notice image
Logis, élévation postérieure ouest, corps de logis.
Logis, élévation postérieure ouest, corps de logis.
(c) Région Nouvelle-Aquitaine, Inventaire général du patrimoine culturel
Voir la notice image
Logis et écurie accolée, vue prise du nord.
Logis et écurie accolée, vue prise du nord.
(c) Région Nouvelle-Aquitaine, Inventaire général du patrimoine culturel
Voir la notice image
Logis, élévation antérieure est, corps de logis et écurie accolée, vue prise de l'est.
Logis, élévation antérieure est, corps de logis et écurie accolée, vue prise de l'est.
(c) Région Nouvelle-Aquitaine, Inventaire général du patrimoine culturel
Voir la notice image
Logis, élévation antérieure est, corps de logis et écurie accolée, détail du chaînage.
Logis, élévation antérieure est, corps de logis et écurie accolée, détail du chaînage.
(c) Région Nouvelle-Aquitaine, Inventaire général du patrimoine culturel
Voir la notice image
Logis et dépendances accolées, vue prise de l'ouest.
Logis et dépendances accolées, vue prise de l'ouest.
(c) Région Nouvelle-Aquitaine, Inventaire général du patrimoine culturel
Voir la notice image
Logis, élévation postérieure ouest, corps de logis, détail de la baie à l'étage dont le grillage est décrit en 1771.
Logis, élévation postérieure ouest, corps de logis, détail de la baie à l'étage dont le grillage est décrit en 1771.
(c) Région Nouvelle-Aquitaine, Inventaire général du patrimoine culturel
Voir la notice image
Logis et dépendances, vue du nord-ouest.
Logis et dépendances, vue du nord-ouest.
(c) Région Nouvelle-Aquitaine, Inventaire général du patrimoine culturel
Voir la notice image
Logis, élévation nord, corps de logis et écurie accolée, vue prise du nord.
Logis, élévation nord, corps de logis et écurie accolée, vue prise du nord.
(c) Région Nouvelle-Aquitaine, Inventaire général du patrimoine culturel
Voir la notice image
Logis, élévation nord, corps de logis et écurie accolée, détail des baies.
Logis, élévation nord, corps de logis et écurie accolée, détail des baies.
(c) Région Nouvelle-Aquitaine, Inventaire général du patrimoine culturel
Voir la notice image
Logis, élévation antérieure est, vue prise du sud-est.
Logis, élévation antérieure est, vue prise du sud-est.
(c) Région Nouvelle-Aquitaine, Inventaire général du patrimoine culturel
Voir la notice image
Second logis accolé au logis principal, élévation antérieure sud, vue prise du sud.
Second logis accolé au logis principal, élévation antérieure sud, vue prise du sud.
(c) Région Nouvelle-Aquitaine, Inventaire général du patrimoine culturel
Voir la notice image
Second logis accolé au logis principal, élévation antérieure sud, détail de la baie chanfreinée du surcroît.
Second logis accolé au logis principal, élévation antérieure sud, détail de la baie chanfreinée du surcroît.
(c) Région Nouvelle-Aquitaine, Inventaire général du patrimoine culturel
Voir la notice image
Logis et dépendances, vue prise de l'ouest.
Logis et dépendances, vue prise de l'ouest.
(c) Région Nouvelle-Aquitaine, Inventaire général du patrimoine culturel
Voir la notice image
Logis, élévation postérieure ouest, corps de logis, détail de la mise en oeuvre d'une niche mentionnée en 1771 près de l'escalier en pierre intérieur du logis principal.
Logis, élévation postérieure ouest, corps de logis, détail de la mise en oeuvre d'une niche mentionnée en 1771 près de l'escalier en pierre intérieur du logis principal.
(c) Région Nouvelle-Aquitaine, Inventaire général du patrimoine culturel
Voir la notice image
Second logis accolé au logis principal, élévation est, escalier d'accès au grenier, détail d'une dalle remployée dans l'angle nord-est.
Second logis accolé au logis principal, élévation est, escalier d'accès au grenier, détail d'une dalle remployée dans l'angle nord-est.
(c) Région Nouvelle-Aquitaine, Inventaire général du patrimoine culturel
Voir la notice image
Second logis accolé au logis principal, élévation est, escalier d'accès au grenier, dalle remployée dans l'angle, détail.
Second logis accolé au logis principal, élévation est, escalier d'accès au grenier, dalle remployée dans l'angle, détail.
(c) Région Nouvelle-Aquitaine, Inventaire général du patrimoine culturel
Voir la notice image
Logis, élévation antérieure est, avant-corps, détail de la semelle de gauche.
Logis, élévation antérieure est, avant-corps, détail de la semelle de gauche.
(c) Région Nouvelle-Aquitaine, Inventaire général du patrimoine culturel
Voir la notice image
Logis, élévation antérieure est, avant-corps, porte d'accès au logis principal.
Logis, élévation antérieure est, avant-corps, porte d'accès au logis principal.
(c) Région Nouvelle-Aquitaine, Inventaire général du patrimoine culturel
Voir la notice image
Logis, élévation antérieure est, avant-corps, porte d'accès au logis principal et mur légèrement arrondi de droite.
Logis, élévation antérieure est, avant-corps, porte d'accès au logis principal et mur légèrement arrondi de droite.
(c) Région Nouvelle-Aquitaine, Inventaire général du patrimoine culturel
Voir la notice image
Logis principal, intérieur, rez-de-chaussée, cheminée.
Logis principal, intérieur, rez-de-chaussée, cheminée.
(c) Région Nouvelle-Aquitaine, Inventaire général du patrimoine culturel
Voir la notice image
Logis principal, intérieur, rez-de-chaussée, cheminée, vue de trois-quarts.
Logis principal, intérieur, rez-de-chaussée, cheminée, vue de trois-quarts.
(c) Région Nouvelle-Aquitaine, Inventaire général du patrimoine culturel
Voir la notice image
Logis principal, intérieur, rez-de-chaussée, cheminée, profil de droite.
Logis principal, intérieur, rez-de-chaussée, cheminée, profil de droite.
(c) Région Nouvelle-Aquitaine, Inventaire général du patrimoine culturel
Voir la notice image
Logis principal, intérieur, rez-de-chaussée, plafond.
Logis principal, intérieur, rez-de-chaussée, plafond.
(c) Région Nouvelle-Aquitaine, Inventaire général du patrimoine culturel
Voir la notice image
Logis principal, intérieur, rez-de-chaussée, mur ouest, niche, mentionnée en 1771 à proximité de l'escalier en pierre.
Logis principal, intérieur, rez-de-chaussée, mur ouest, niche, mentionnée en 1771 à proximité de l'escalier en pierre.
(c) Région Nouvelle-Aquitaine, Inventaire général du patrimoine culturel
Voir la notice image
Logis principal, intérieur, rez-de-chaussée, mur nord, vestiges de la fenêtre à coussiège donnant sur l'écurie.
Logis principal, intérieur, rez-de-chaussée, mur nord, vestiges de la fenêtre à coussiège donnant sur l'écurie.
(c) Région Nouvelle-Aquitaine, Inventaire général du patrimoine culturel
Voir la notice image
Logis principal, intérieur, rez-de-chaussée, mur nord, vestiges de la fenêtre à coussiège donnant sur l'écurie, détail du coussiège et de la pierre d'évier remployée au sol.
Logis principal, intérieur, rez-de-chaussée, mur nord, vestiges de la fenêtre à coussiège donnant sur l'écurie, détail du coussiège et de la pierre d'évier remployée au sol.
(c) Région Nouvelle-Aquitaine, Inventaire général du patrimoine culturel
Voir la notice image
Logis principal, intérieur, rez-de-chaussée, mur nord, vestiges de la fenêtre à coussiège donnant sur l'écurie, détail de la pierre d'évier remployée au sol.
Logis principal, intérieur, rez-de-chaussée, mur nord, vestiges de la fenêtre à coussiège donnant sur l'écurie, détail de la pierre d'évier remployée au sol.
(c) Région Nouvelle-Aquitaine, Inventaire général du patrimoine culturel
Voir la notice image
Logis principal, intérieur, rez-de-chaussée, mur nord, vestiges de la baie murée au nord-ouest.
Logis principal, intérieur, rez-de-chaussée, mur nord, vestiges de la baie murée au nord-ouest.
(c) Région Nouvelle-Aquitaine, Inventaire général du patrimoine culturel
Voir la notice image
Logis du fermier accolé au sud, chambre principale, porte murée au nord, détail du corbeau de gauche.
Logis du fermier accolé au sud, chambre principale, porte murée au nord, détail du corbeau de gauche.
(c) Région Nouvelle-Aquitaine, Inventaire général du patrimoine culturel
Voir la notice image
Logis principal, étage, cloison de bousillis (torchis).
Logis principal, étage, cloison de bousillis (torchis).
(c) Région Nouvelle-Aquitaine, Inventaire général du patrimoine culturel
Voir la notice image
Logis principal, étage, salle, fenêtre à coussiège au nord.
Logis principal, étage, salle, fenêtre à coussiège au nord.
(c) Région Nouvelle-Aquitaine, Inventaire général du patrimoine culturel
Voir la notice image
Logis principal, étage, salle, fenêtre à coussiège à l'est.
Logis principal, étage, salle, fenêtre à coussiège à l'est.
(c) Région Nouvelle-Aquitaine, Inventaire général du patrimoine culturel
Voir la notice image
Logis principal, étage, salle, fenêtre à coussiège à l'est, détail du couvrement.
Logis principal, étage, salle, fenêtre à coussiège à l'est, détail du couvrement.
(c) Région Nouvelle-Aquitaine, Inventaire général du patrimoine culturel
Voir la notice image
Logis principal, étage, salle, cheminée, vue d'ensemble.
Logis principal, étage, salle, cheminée, vue d'ensemble.
(c) Région Nouvelle-Aquitaine, Inventaire général du patrimoine culturel
Voir la notice image
Logis principal, étage, salle, cheminée, vue de trois-quarts.
Logis principal, étage, salle, cheminée, vue de trois-quarts.
(c) Région Nouvelle-Aquitaine, Inventaire général du patrimoine culturel
Voir la notice image
Logis principal, étage, salle, cheminée, détail du jambage de droite.
Logis principal, étage, salle, cheminée, détail du jambage de droite.
(c) Région Nouvelle-Aquitaine, Inventaire général du patrimoine culturel
Voir la notice image
Logis principal, étage, salle, cheminée, jambage de droite, détail du pied.
Logis principal, étage, salle, cheminée, jambage de droite, détail du pied.
(c) Région Nouvelle-Aquitaine, Inventaire général du patrimoine culturel
Voir la notice image
Logis principal, étage, salle, cheminée, jambage de droite, détail extérieur du pied.
Logis principal, étage, salle, cheminée, jambage de droite, détail extérieur du pied.
(c) Région Nouvelle-Aquitaine, Inventaire général du patrimoine culturel
Voir la notice image
Logis principal, étage, salle, cheminée, jambage de gauche.
Logis principal, étage, salle, cheminée, jambage de gauche.
(c) Région Nouvelle-Aquitaine, Inventaire général du patrimoine culturel
Voir la notice image
Logis principal, étage, salle, cheminée, profil du manteau.
Logis principal, étage, salle, cheminée, profil du manteau.
(c) Région Nouvelle-Aquitaine, Inventaire général du patrimoine culturel
Voir la notice image
Logis principal, étage, pièce dans l'avant-corps (pigeonnier), détail du mur est.
Logis principal, étage, pièce dans l'avant-corps (pigeonnier), détail du mur est.
(c) Région Nouvelle-Aquitaine, Inventaire général du patrimoine culturel
Voir la notice image
Logis principal, étage, salle, encadrement chanfreiné de la porte de communication avec le logis accolé et échelle d'accès au grenier.
Logis principal, étage, salle, encadrement chanfreiné de la porte de communication avec le logis accolé et échelle d'accès au grenier.
(c) Région Nouvelle-Aquitaine, Inventaire général du patrimoine culturel
Voir la notice image
Fournil accolé à l'ouest au logis ouest, élévation est, vue d'ensemble.
Fournil accolé à l'ouest au logis ouest, élévation est, vue d'ensemble.
(c) Région Nouvelle-Aquitaine, Inventaire général du patrimoine culturel
Voir la notice image
Fournil accolé au sud au logis du fermier, intérieur, vue vers la gueule du four et les vestiges des maçonneries de la buanderie.
Fournil accolé au sud au logis du fermier, intérieur, vue vers la gueule du four et les vestiges des maçonneries de la buanderie.
(c) Région Nouvelle-Aquitaine, Inventaire général du patrimoine culturel
Voir la notice image
Fournil accolé au sud au logis du fermier, intérieur, four, détail de la voûte.
Fournil accolé au sud au logis du fermier, intérieur, four, détail de la voûte.
(c) Région Nouvelle-Aquitaine, Inventaire général du patrimoine culturel
Voir la notice image
Dépendances, fournil accolé au sud-ouest du logis du fermier, élévation sud.
Dépendances, fournil accolé au sud-ouest du logis du fermier, élévation sud.
(c) Région Nouvelle-Aquitaine, Inventaire général du patrimoine culturel
Voir la notice image
Dépendances, toit aux moutons accolé à l'ouest du logis du fermier, élévation nord, porte murée et petite baie.
Dépendances, toit aux moutons accolé à l'ouest du logis du fermier, élévation nord, porte murée et petite baie.
(c) Région Nouvelle-Aquitaine, Inventaire général du patrimoine culturel
Voir la notice image
Dépendances, écurie accolée au nord du logis, élévation nord, porte, encadrement droit, pierre avec l'inscription Roland Larchier et un motif trapézoïdal gravé.
Dépendances, écurie accolée au nord du logis, élévation nord, porte, encadrement droit, pierre avec l'inscription Roland Larchier et un motif trapézoïdal gravé.
(c) Région Nouvelle-Aquitaine, Inventaire général du patrimoine culturel
Voir la notice image
Dépendances, ruines de la grange-étable ancienne, vue prise du nord-ouest.
Dépendances, ruines de la grange-étable ancienne, vue prise du nord-ouest.
(c) Région Nouvelle-Aquitaine, Inventaire général du patrimoine culturel
Voir la notice image
Dépendances, ruines de la grange-étable ancienne, vue prise du sud.
Dépendances, ruines de la grange-étable ancienne, vue prise du sud.
(c) Région Nouvelle-Aquitaine, Inventaire général du patrimoine culturel
Voir la notice image
Dépendances, écurie accolée au nord du logis, intérieur, vue des boxes.
Dépendances, écurie accolée au nord du logis, intérieur, vue des boxes.
(c) Région Nouvelle-Aquitaine, Inventaire général du patrimoine culturel
Voir la notice image
Dépendances, écurie accolée au nord du logis, intérieur, détail du sol pavé.
Dépendances, écurie accolée au nord du logis, intérieur, détail du sol pavé.
(c) Région Nouvelle-Aquitaine, Inventaire général du patrimoine culturel
Voir la notice image
Logis principal, étage, salle, cheminée, vue de trois-quarts gauche.
Logis principal, étage, salle, cheminée, vue de trois-quarts gauche.
(c) Région Nouvelle-Aquitaine, Inventaire général du patrimoine culturel
Voir la notice image
Logis principal, étage, salle, cheminée, profil gauche.
Logis principal, étage, salle, cheminée, profil gauche.
(c) Région Nouvelle-Aquitaine, Inventaire général du patrimoine culturel
Voir la notice image
Logis principal, comble à surcroît, détail de la charpente.
Logis principal, comble à surcroît, détail de la charpente.
(c) Région Nouvelle-Aquitaine, Inventaire général du patrimoine culturel
Voir la notice image
Dépendances, puits et toit à cochon au sud-ouest des logis, vue prise du sud.
Dépendances, puits et toit à cochon au sud-ouest des logis, vue prise du sud.
(c) Région Nouvelle-Aquitaine, Inventaire général du patrimoine culturel
Voir la notice image
Dépendances, puits et toit à cochon au sud-ouest des logis, vue prise du nord.
Dépendances, puits et toit à cochon au sud-ouest des logis, vue prise du nord.
(c) Région Nouvelle-Aquitaine, Inventaire général du patrimoine culturel
Voir la notice image
Dépendances, puits et toit à cochon au sud-ouest des logis, détail de l'angle abattu au nord-est.
Dépendances, puits et toit à cochon au sud-ouest des logis, détail de l'angle abattu au nord-est.
(c) Région Nouvelle-Aquitaine, Inventaire général du patrimoine culturel
Voir la notice image
Dépendances, logement-grange-étable-hangar, vue prise de l'ouest.
Dépendances, logement-grange-étable-hangar, vue prise de l'ouest.
(c) Région Nouvelle-Aquitaine, Inventaire général du patrimoine culturel
Voir la notice image
Dépendances, logement-grange-étable-hangar, élévation antérieure nord-ouest.
Dépendances, logement-grange-étable-hangar, élévation antérieure nord-ouest.
(c) Région Nouvelle-Aquitaine, Inventaire général du patrimoine culturel
Voir la notice image
Dépendances, logement-grange-étable-hangar, élévation postérieure sud-est.
Dépendances, logement-grange-étable-hangar, élévation postérieure sud-est.
(c) Région Nouvelle-Aquitaine, Inventaire général du patrimoine culturel
Voir la notice image
Dépendances, logement-grange-étable-hangar, élévation postérieure sud-est, détail du chaînage indiquant que l'étable a été bâtie en même temps que le logement-grange.
Dépendances, logement-grange-étable-hangar, élévation postérieure sud-est, détail du chaînage indiquant que l'étable a été bâtie en même temps que le logement-grange.
(c) Région Nouvelle-Aquitaine, Inventaire général du patrimoine culturel
Voir la notice image
Dépendances, logement-grange-étable-hangar, élévation postérieure sud-est, détail du chaînage du bâtiment logement-grange auquel le hangar a été accolé.
Dépendances, logement-grange-étable-hangar, élévation postérieure sud-est, détail du chaînage du bâtiment logement-grange auquel le hangar a été accolé.
(c) Région Nouvelle-Aquitaine, Inventaire général du patrimoine culturel
Voir la notice image
Dépendances, hangar accolé au bâtiment logement-grange, vue prise de l'est.
Dépendances, hangar accolé au bâtiment logement-grange, vue prise de l'est.
(c) Région Nouvelle-Aquitaine, Inventaire général du patrimoine culturel
Voir la notice image
Dépendances, hangar accolé au bâtiment logement-grange, porte d'accès à la grange sous le hangar.
Dépendances, hangar accolé au bâtiment logement-grange, porte d'accès à la grange sous le hangar.
(c) Région Nouvelle-Aquitaine, Inventaire général du patrimoine culturel
Voir la notice image
Dépendances, hangar accolé au bâtiment logement-grange, charpente.
Dépendances, hangar accolé au bâtiment logement-grange, charpente.
(c) Région Nouvelle-Aquitaine, Inventaire général du patrimoine culturel
Voir la notice image