Ministère
de la Culture
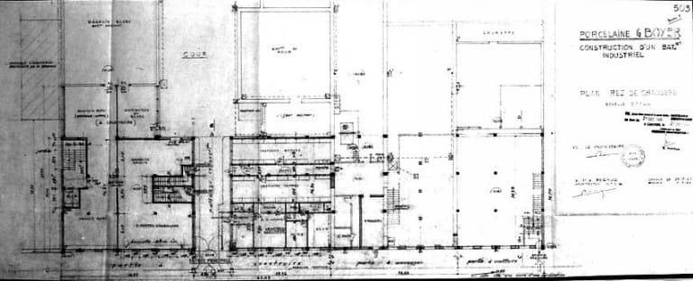
POP | Plateforme ouverte du patrimoineusine de porcelaine Madesclaire, puis Boyer et Cie, actuellement perception
usine de porcelaine Madesclaire, puis Boyer et Cie, actuellement perception






Référence de la notice
IA87000193
Nom de la base
Patrimoine architectural (Mérimée)
Producteur
Inventaire
Date de création de la notice
22 janvier 2004
Date de dernière modification de la notice
8 novembre 2022
Rédacteur de la notice
Pillet Frédéric
Mentions légales
(c) Région Nouvelle-Aquitaine, Inventaire général du patrimoine culturel ; (c) Ville de Limoges
Désignation de l'édifice
Titre courant
usine de porcelaine Madesclaire, puis Boyer et Cie, actuellement perception
Appellation d'usage
Usine de porcelaine Madesclaire, puis Boyer et Cie
Producteur
Inventaire
Dénomination de l'édifice
usine de porcelaine
Destination actuelle de l'édifice
édifice fiscal
Localisation au moment de la protection ou de l'étude
Localisation
Nouvelle-Aquitaine ; Haute-Vienne (87) ; Limoges ; 54 rue Montesquieu ; 49 à 61 rue Jean-de-La-Fontaine
Aire d'étude pour le domaine de l'Inventaire
Limoges
Canton
Limoges-Beaupuy
Adresse de l'édifice
Montesquieu (rue) 54 ; Jean-de-La-Fontaine (rue) 49 à 61
Références cadastrales
2002 BO 265
Milieu d'implantation pour le domaine de l'Inventaire
en ville
Partie constituante non étudiée
atelier de fabrication ; magasin industriel ; entrepôt industriel ; bureau d'entreprise