Ministère
de la Culture
POP | Plateforme ouverte du patrimoineChâteau et ses abords
Château et ses abords






Référence de la notice
PA00097021
Nom de la base
Patrimoine architectural (Mérimée)
Producteur
Monuments historiques
Date de création de la notice
14 septembre 1993
Date de dernière modification de la notice
19 décembre 2025
Mentions légales
© Monuments historiques, 1992. Cette notice reprend intégralement les termes de l’arrêté de protection au titre des Monuments historiques. Elle répond à l’obligation réglementaire du ministère de la Culture d’établir la liste générale des immeubles protégés (art. R. 621-80 du Code du patrimoine). Elle est donc opposable et fait foi juridiquement. Aucune copie numérique ou papier ne sera fournie par courrier ni courriel. Le dossier de protection complet et l’arrêté sont consultables uniquement sur place, dans la salle de lecture de la Médiathèque du patrimoine et de la photographie (MPP), à Charenton-le-Pont (Val-de-Marne).
Désignation de l'édifice
Titre courant
Château et ses abords
Producteur
Monuments historiques
Dénomination de l'édifice
château
Localisation au moment de la protection ou de l'étude
Localisation
Centre-Val de Loire ; Eure-et-Loir (28) ; Châteaudun
Précision sur la localisation
Anciennement région de : Centre
Références cadastrales
L 699 à 702
Historique de l'édifice
Siècle de campagne principale de construction
Description historique
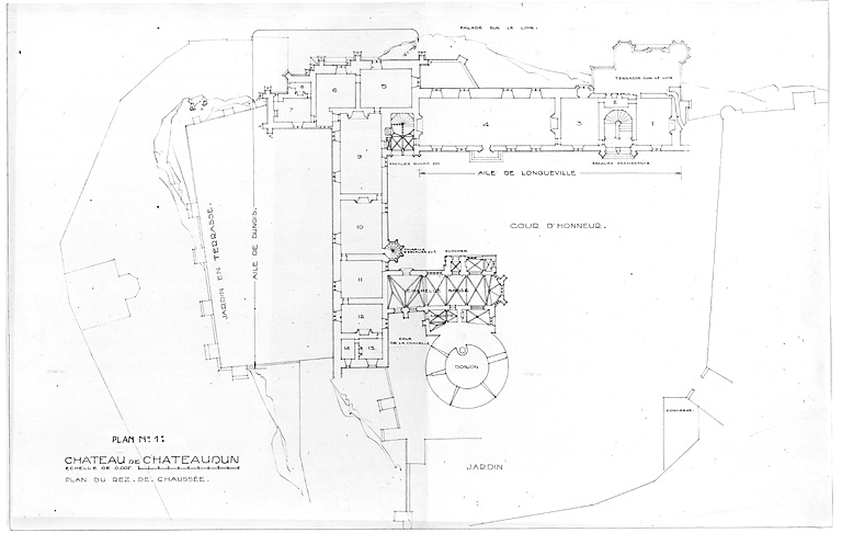
Ce château est l'un des plus intéressants édifices civils de la fin du 15e et du début du 16e siècle. Le château occupe l'extrémité d'un promontoire rocheux dominant l'ancien gué du Loir. Les abords n'ont pas été modifiés depuis le 17e siècle. Entre le château et le Loir existent des jardins ayant conservé leur tracé ancien, leurs gloriettes, leurs allées de vieux tilleuls et le mur de quai sur le Loir. Le pont franchissant le Loir fut détruit par les Allemands en août 1944. Au pied du château, élevée sur les piles anciennes du moulin du 16e siècle, se trouve l'usine élévatoire des eaux qui utilise la force de la chute d'eau, continuant l'existence de l'ancien moulin pour des besoins industriels.
Description de l'édifice
Technique du décor porté de l'édifice
sculpture
Statut juridique, intérêt, protection et label
Nature de la protection de l'édifice
classé MH partiellement ; inscrit MH partiellement ; protection totale
Date et niveau de protection de l'édifice
1918/07/06 : classé MH ; 1946/10/14 : inscrit MH ; 1947/04/02 : classé MH ; 1947/04/02 : inscrit MH
Précision sur la protection
Le château : classement par arrêté du 6 juillet 1918 - Les parcelles 207 et 212 sises au pied du château : inscription par arrêté du 14 octobre 1946 - Les abords du château (cad. L 699 à 702) : classement par arrêté du 2 avril 1947 - Les parcelles cadastrales 133 à 143, 145 à 157 constituant le cloître de Luynes aux abords du château : inscription par arrêté du 2 avril 1947
Nature de l'acte de protection
arrêté
Intérêt de l'édifice
à signaler
Statut juridique
Statut juridique du propriétaire
propriété de l'État
Affectataire de l'édifice
direction générale des patrimoines
Précision concernant l'affectataire de l'édifice
édifice géré par le CMN (Centre des Monuments Nationaux)
Références documentaires
Cadre de l'étude
Typologie du dossier
dossier de protection
Date de rédaction de la notice
1992
Mentions légales
© Monuments historiques, 1992. Cette notice reprend intégralement les termes de l’arrêté de protection au titre des Monuments historiques. Elle répond à l’obligation réglementaire du ministère de la Culture d’établir la liste générale des immeubles protégés (art. R. 621-80 du Code du patrimoine). Elle est donc opposable et fait foi juridiquement. Aucune copie numérique ou papier ne sera fournie par courrier ni courriel. Le dossier de protection complet et l’arrêté sont consultables uniquement sur place, dans la salle de lecture de la Médiathèque du patrimoine et de la photographie (MPP), à Charenton-le-Pont (Val-de-Marne).
Voir aussi
Arrêté de protection MH
Liens externes éventuels
Référence pour lien avec la base Archiv'MH

Référence de la notice
PA00097021
Nom de la base
Patrimoine architectural (Mérimée)
Producteur
Monuments historiques
Date de création de la notice
14 septembre 1993
Date de dernière modification de la notice
19 décembre 2025
Mentions légales
© Monuments historiques, 1992. Cette notice reprend intégralement les termes de l’arrêté de protection au titre des Monuments historiques. Elle répond à l’obligation réglementaire du ministère de la Culture d’établir la liste générale des immeubles protégés (art. R. 621-80 du Code du patrimoine). Elle est donc opposable et fait foi juridiquement. Aucune copie numérique ou papier ne sera fournie par courrier ni courriel. Le dossier de protection complet et l’arrêté sont consultables uniquement sur place, dans la salle de lecture de la Médiathèque du patrimoine et de la photographie (MPP), à Charenton-le-Pont (Val-de-Marne).
Signalez une erreurEnvoyer un courriel