Ministère
de la Culture
POP | Plateforme ouverte du patrimoineAncienne abbaye bénédictine
Ancienne abbaye bénédictine






Référence de la notice
PA00097710
Nom de la base
Patrimoine architectural (Mérimée)
Producteur
Monuments historiques
Date de création de la notice
14 septembre 1993
Date de dernière modification de la notice
28 novembre 2025
Mentions légales
© Monuments historiques, 1992. Cette notice reprend intégralement les termes de l’arrêté de protection au titre des Monuments historiques. Elle répond à l’obligation réglementaire du ministère de la Culture d’établir la liste générale des immeubles protégés (art. R. 621-80 du Code du patrimoine). Elle est donc opposable et fait foi juridiquement. Aucune copie numérique ou papier ne sera fournie par courrier ni courriel. Le dossier de protection complet et l’arrêté sont consultables uniquement sur place, dans la salle de lecture de la Médiathèque du patrimoine et de la photographie (MPP), à Charenton-le-Pont (Val-de-Marne).
Désignation de l'édifice
Titre courant
Ancienne abbaye bénédictine
Producteur
Monuments historiques
Dénomination de l'édifice
abbaye
Qualité des personnes pour qui l'édifice a été construit ou transformé
de bénédictines
Localisation au moment de la protection ou de l'étude
Localisation
Centre-Val de Loire ; Indre-et-Loire (37) ; Cormery ; rue de l'Abbaye
Précision sur la localisation
Anciennement région de : Centre
Adresse de l'édifice
Abbaye (rue de l')
Références cadastrales
2003 B 224, 225, 244, 247, 249, 251 à 256, 262, 263, 688, 689, 968 ; 2021 B 170, 171, 203, 205, 206, 208, 211, 219, 220, 221, 224, 225, 226, 231, 232, 233, 234, 237, 242, 243, 244, 246, 247, 249, 250, 254, 255, 257, 258, 259, 260, 261, 262, 263, 264, 265, 266, 267, 268, 269, 337, 393, 394, 635, 636, 686, 687, 688, 689, 691, 692, 693, 871, 872, 873, 899, 917, 918, 958, 967, 968, 994, 1030, 1031, 1032, 1033, 1034
Historique de l'édifice
Siècle de campagne principale de construction
Année(s) de(s) campagne(s) de construction
1463
Description historique
La fondation de l'abbaye remonte à 791, par des religieux soumis à la règle de Saint-Benoît. Le premier abbé fut nommé en 821. En 853, le monastère et la ville furent pillés par les Normands. Au 11e siècle, l'abbé Robert Ier fit reconstruire l'église et les bâtiments conventuels. En 1358, Cormery fut pris par les Anglais qui saccagèrent le monastère et la ville. En 1450, l'abbé Pierre Berthelot mit la ville à l'abri derrière une muraille et des fossés. L'ancienne abbaye bénédictine a subi de nombreux remaniements, mais présente des vestiges des époques romane et gothique. L'abbaye comprenait une église abbatiale composée d'un important clocher roman, la tour Saint-Paul, dont la galerie supérieure et la flèche se sont écroulées en 1891. Elle se composait d'une nef flanquée de bas-côtés étroits qui se prolongeaient autour d'un choeur. Un transept séparait la nef du choeur. De la nef, du choeur et du transept, il ne reste rien de l'époque romane. Les vestiges appartenant à l'époque gothique comprennent les restes d'un réfectoire de la fin du 13e siècle, quelques parties des cloîtres appartenant aux 14e et 15e siècles, une chapelle absidiale du 15e siècle ayant fait partie de l'ancienne église abbatiale, le logis abbatial du 15e siècle. Chapiteaux, culs de lampe et clés de voûtes sculptés, mêlant figures humaines et décoration florale. L'extrémité du croisillon sud de l'église présente une tour semi circulaire, dite tour Saint-Jean, construite en 1463 pour fortifier l'abbaye.
Description de l'édifice
Typologie de la couverture
charpente en bois
Couverts ou découverts du jardin de l'édifice
Un grand jardin clos en terrasse, dit "jardin des moines", précédé d’un autre plus petit qu’il finira par englober, s’étendaient à l’Est de l’ensemble conventuel. Un verger s’étendait encore plus à l’Est, au-delà de la clôture monastique, dans l’Enclos de l’Abbaye. Un autre espace dit "le parc" s’étendait au sud de l’abbatiale, à proximité de la basse-cour attenante
au logis abbatial. Son usage semble lui avoir été réservé à une époque3. Mais il était planté de sainfoin d’après un procès-verbal de 1692 et de luzerne en 1793. L’ensemble du site monastique, de fait, était enfermé dans un mur de clôture approximativement concentrique, auquel s’est ajoutée l’accrue Est de la basse-cour.
Commentaire descriptif de l'édifice
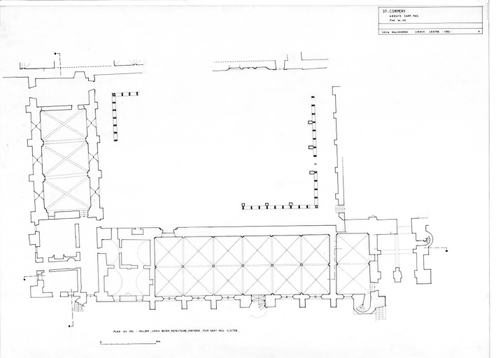
Conformément à la tradition, l’abbatiale est orientée d’ouest en est. En raison du dénivelé, le cloître et les bâtiments conventuels sont disposés au nord et en dessous du niveau de l’église (-1m30 et plus). Autour du préau et des galeries du cloître, l’aile ouest accueille la porterie et le parloir qui s’appuient contre le mur nord de la tour Saint-Paul. Elle se
poursuit par le vaste réfectoire et par la cuisine qui forme l’angle nord-ouest. L’aile nord est occupée par les travées du cellier, surmontées de salles pour l’accueil des hôtes, de la bibliothèque et de l’infirmerie. La salle capitulaire et la sacristie, jouxtant le bras nord du transept de l’abbatiale, à l’est, sont surmontées des dortoirs. Cette partie de l’aile Est est séparée de la suivante par un passage transversal. Il dessert l’escalier menant au dortoir à l’étage et mène à une galerie extérieure, perpendiculaire à l’aile, pour aller à couvert jusqu’au petit et au grand jardins des moines. L’aile Est se poursuit vers le nord par le chartrier et différentes dépendances.
D’autres bâtiments sont édifiés autour de l’ensemble conventuel, à l’intérieur de la clôture. L’aumônerie, dite aussi maison du Prieur, est située le long de l’entrée principale du monastère, au sud de la tour Saint-Paul. Le logis abbatial est construit au-delà du chevet de l’abbatiale, à cheval sur le mur de clôture. Il est protégé par un premier mur de clôture le séparant de la ville et par l’accrue qui a été faite pour englober une fuie, une grange dîmière, un pressoir et des écuries dans un nouvel enclos indépendant formant la basse-cour. Celle-ci s’étend vers l’est, tangente à la clôture monastique et à l’enceinte de la ville. D’autres constructions existaient et apparaissent encore à l’état de vestiges, plus ou moins bien
identifiées : le cellier-marc, la maison du sacriste, anciennes latrines, etc.
Technique du décor porté de l'édifice
Dans la chapelle Saint-Saphorien, une peinture murale a été dégagée au-dessus d'une niche murée disposée dans la partie ouest du mur sud. Elle présente trois personnages peu lisibles.
Statut juridique, intérêt, protection et label
Nature de la protection de l'édifice
classé MH partiellement ; inscrit MH partiellement
Date et niveau de protection de l'édifice
1908/04/26 : classé MH ; 1921/03/10 : classé MH ; 1930/09/19 : classé MH ; 2021/06/02 : inscrit MH
Précision sur la protection
Le clocher de l'ancienne église abbatiale, dénommé Tour Saint-Paul : classement par arrêté du 26 avril 1908 - Les restes du réfectoire (avec tourelle d'escalier attenante) et du cloître ; la chapelle absidale de l'ancienne église abbatiale ; le logis abbatial et le cellier (cad. B 224, 225, 244, 247, 249, 251 à 256, 262, 263, 688, 689, 968) : classement par arrêté du 10 mars 1921 et du 19 septembre 1930 - Les vestiges de l'abbaye Saint-Paul, en totalité, et les parcelles cadastrales sur lesquelles elles se trouvent, à l'exception des bâtiments déjà classés, tels que représentés sur le plan annexé à l'arrêté et figurant au plan cadastral section B sur les parcelles numéros : 170, 171, 203, 205, 206, 208, 211, 219, 220, 221, 224, 225, 226, 231, 232, 233, 234, 237, 242, 243, 244, 246, 247, 249, 250, 254, 255, 257, 258, 259, 260, 261, 262, 263, 264, 265, 266, 267, 268, 269, 337, 393, 394, 635, 636, 686, 687, 688, 689, 691, 692, 693, 871, 872, 873, 899, 917, 918, 958, 967, 968, 994, 1030, 1031, 1032, 1033, 1034 : inscription par arrêté du 2 juin 2021
Nature de l'acte de protection
arrêté
Intérêt de l'édifice
à signaler
Observation concernant la protection de l'édifice
18 04 1914 (J.O.) ; Site archéologique : 37 083 3 AH ; L'arrêté d'inscription du 2 juin 2021 se substitue à l'arrêté d'inscription du 3 mars 1933 : La maison du Prieur : inscription par arrêté du 3 mars 1933
Statut juridique
Statut juridique du propriétaire
propriété privée ; propriété de la commune ; propriété de la communauté de communes
Affectataire de l'édifice
communauté de communes de Loches Sud Touraine
Références documentaires
Cadre de l'étude
Typologie du dossier
dossier de protection
Date de rédaction de la notice
1992
Mentions légales
© Monuments historiques, 1992. Cette notice reprend intégralement les termes de l’arrêté de protection au titre des Monuments historiques. Elle répond à l’obligation réglementaire du ministère de la Culture d’établir la liste générale des immeubles protégés (art. R. 621-80 du Code du patrimoine). Elle est donc opposable et fait foi juridiquement. Aucune copie numérique ou papier ne sera fournie par courrier ni courriel. Le dossier de protection complet et l’arrêté sont consultables uniquement sur place, dans la salle de lecture de la Médiathèque du patrimoine et de la photographie (MPP), à Charenton-le-Pont (Val-de-Marne).
Voir aussi
Référence pour lien avec la base Archiv'MH

Référence de la notice
PA00097710
Nom de la base
Patrimoine architectural (Mérimée)
Producteur
Monuments historiques
Date de création de la notice
14 septembre 1993
Date de dernière modification de la notice
28 novembre 2025
Mentions légales
© Monuments historiques, 1992. Cette notice reprend intégralement les termes de l’arrêté de protection au titre des Monuments historiques. Elle répond à l’obligation réglementaire du ministère de la Culture d’établir la liste générale des immeubles protégés (art. R. 621-80 du Code du patrimoine). Elle est donc opposable et fait foi juridiquement. Aucune copie numérique ou papier ne sera fournie par courrier ni courriel. Le dossier de protection complet et l’arrêté sont consultables uniquement sur place, dans la salle de lecture de la Médiathèque du patrimoine et de la photographie (MPP), à Charenton-le-Pont (Val-de-Marne).
Signalez une erreurEnvoyer un courriel