Ministère
de la Culture
POP | Plateforme ouverte du patrimoineAncien hangar à bateaux, dit Halle Saint-Pierre
Ancien hangar à bateaux, dit Halle Saint-Pierre






Référence de la notice
PA00099044
Nom de la base
Patrimoine architectural (Mérimée)
Producteur
Monuments historiques
Date de création de la notice
14 septembre 1993
Date de dernière modification de la notice
4 mars 2026
Mentions légales
© Monuments historiques, 1992. Cette notice reprend intégralement les termes de l’arrêté de protection au titre des Monuments historiques. Elle répond à l’obligation réglementaire du ministère de la Culture d’établir la liste générale des immeubles protégés (art. R. 621-80 du Code du patrimoine). Elle est donc opposable et fait foi juridiquement. Aucune copie numérique ou papier ne sera fournie par courrier ni courriel. Le dossier de protection complet et l’arrêté sont consultables uniquement sur place, dans la salle de lecture de la Médiathèque du patrimoine et de la photographie (MPP), à Charenton-le-Pont (Val-de-Marne).
Désignation de l'édifice
Titre courant
Ancien hangar à bateaux, dit Halle Saint-Pierre
Producteur
Monuments historiques
Dénomination de l'édifice
remise à bateau ; halle
Localisation au moment de la protection ou de l'étude
Localisation
Centre-Val de Loire ; Loiret (45) ; Châteauneuf-sur-Loire ; place de la Vieille-Halle
Précision sur la localisation
Anciennement région de : Centre
Adresse de l'édifice
Vieille-Halle (place de la)
Références cadastrales
AX 573
Historique de l'édifice
Siècle de campagne principale de construction
Année(s) de(s) campagne(s) de construction
1844
Description historique
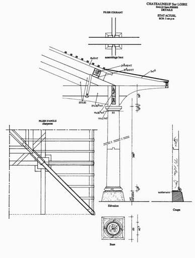
La halle aux grains est un ancien hangar à bateaux construit en 1844 dans le port de Châtillon-sur-Loire pour abriter bateaux et marchandises en cours de transbordement. Remonté en 1854 sur le site actuel pour une affectation commerciale plus traditionnelle, cet édifice reste un rare témoignage monumental de l'activité des mariniers de Loire. La halle est formée de deux vaisseaux de sept travées. La charpente est supportée par des colonnes en sapin à chapiteaux toscans dépourvus d'astragale. Elles reponsent sur des dés en pierre. A l'origine, les bois exposés à l'attaque des eaux ou des pluies étaient recouverts de trois couches de peinture à base de céruse pure.